Запчасти Komatsu PC27MR-2-A ОСНОВН. КОНСТРУКЦИЯ (УПРАВЛЕНИЕ ПОВОРОТОМ СТРЕЛЫ) (НАВЕС) КАБИНА ОПЕРАТОРА И СИСТЕМА УПРАВЛЕНИЯ

Схема запчастей Komatsu PC27MR-2-A - ОСНОВН. КОНСТРУКЦИЯ (УПРАВЛЕНИЕ ПОВОРОТОМ СТРЕЛЫ) (НАВЕС) КАБИНА ОПЕРАТОРА И СИСТЕМА УПРАВЛЕНИЯ
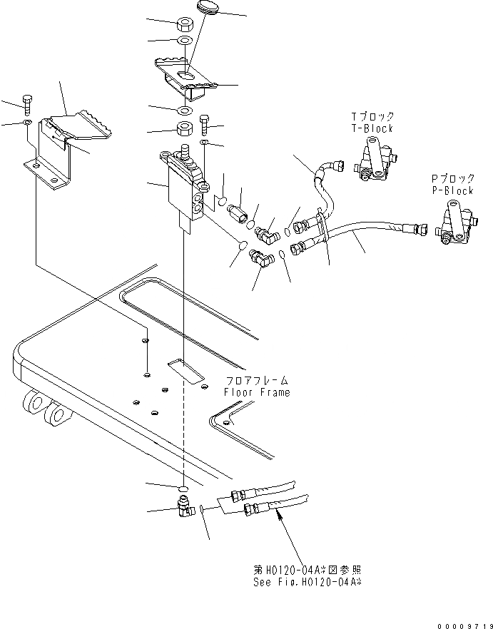
1
2
3
4
5
6
7
8
8
9
9
10
11
12
12
12
13
14
14
14
14
15
15
15
16
17
18
FIT
1:1
100%

Артикул

Название

Примечание

Количество

1

702-16-01270

PILOT VALVE,(SEE FIG.Y1670-31A0)

2

22M-43-21341

PEDAL

3

01010-D1025

BOLT

4

01643-71032

WASHER

5

09415-02512

CAP

6

22M-43-21351

COVER

7

22M-43-11510

HINGE (WELDED)

8

01583-11408

NUT

9

01641-21423

WASHER

10

01010-D1025

BOLT

11

01643-71032

WASHER

12

21W-62-43980

ELBOW

13

20T-910-8660

NIPPLE

14

07000-12011

O-RING

15

02896-11008

O-RING

16

22M-62-23121

HOSE,BLUE¤ WHITE

|16

21U-62-34750

BAND¤ BLUE

|16

21U-62-34770

BAND¤ WHITE

17

22M-62-23141

HOSE,GREEN¤ RED

|17

21U-62-34730

BAND¤ GREEN

|17

21U-62-34760

BAND¤ RED

18

08034-20519

BAND

Выбрано товаров: 22