Запчасти Komatsu PC27R-8 CHISEL ЭЛЕМЕНТЫ КРЕПЛЕНИЯ РАБОЧЕЕ ОБОРУДОВАНИЕ

Схема запчастей Komatsu PC27R-8 - CHISEL ЭЛЕМЕНТЫ КРЕПЛЕНИЯ РАБОЧЕЕ ОБОРУДОВАНИЕ
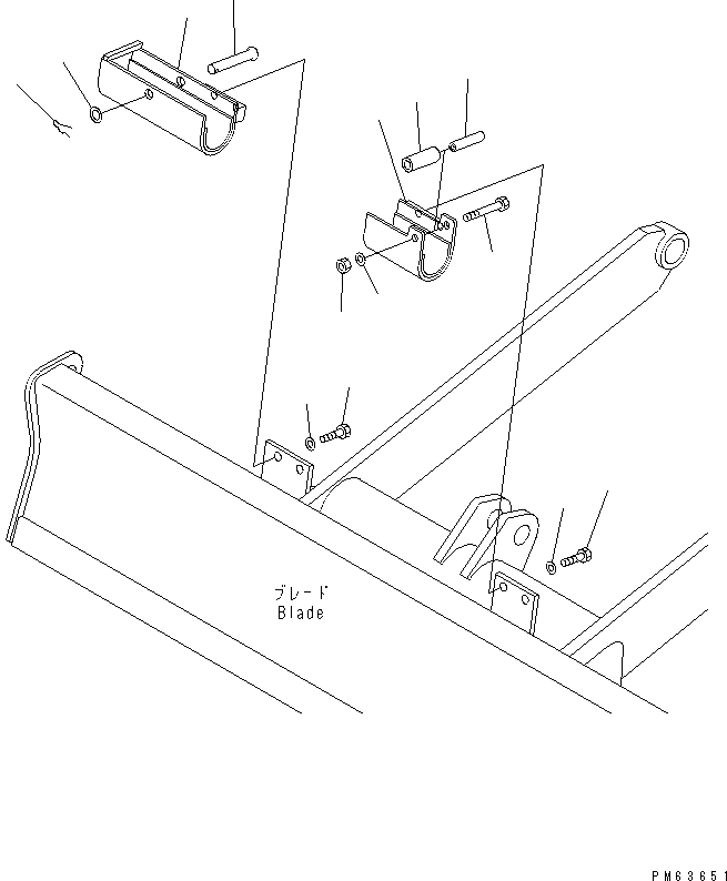
1
2
3
4
5
6
7
8
8
9
9
10
11
12
FIT
1:1
100%

Артикул

Название

Примечание

Количество

1

20P-970-8641

BRACKET,L.H.

2

20P-970-8650

BRACKET,R.H.

3

23S-43-14310

PIN

4

20P-970-8670

COLLAR

5

20P-970-8680

HOSE

6

04052-11664

PIN,SNAP

7

01643-31645

WASHER

8

01010-81225

BOLT

9

01643-31232

WASHER

10

01010-81295

BOLT

11

01643-31232

WASHER

12

01580-11210

NUT

Выбрано товаров: 0