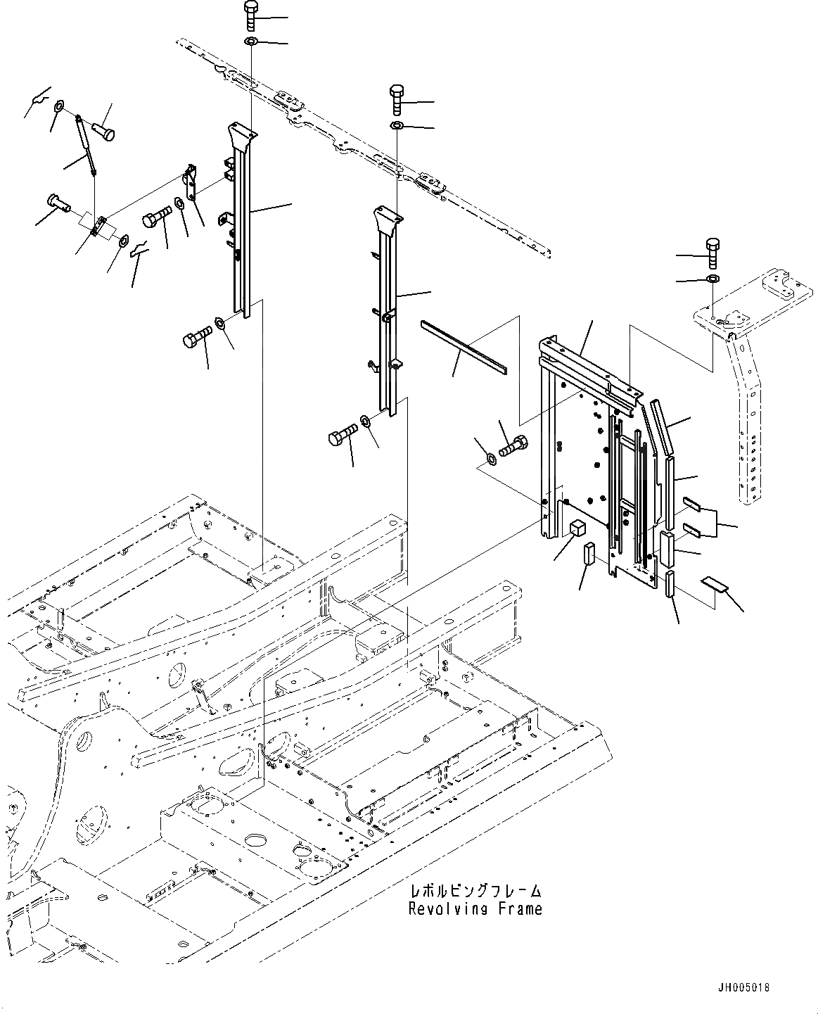
Запчасти Komatsu PC290LC-10 РАМА РАМА

Схема запчастей Komatsu PC290LC-10 - РАМА РАМА
1
2
4
3
5
6
7
8
9
8
9
7
10
21
22
11
12
13
14
15
16
17
18
19
20
21
22
21
22
21
22
21
22
21
22
FIT
1:1
100%

Артикул

Название

Примечание

Количество

1

2A5-54-11631

Frame

2

2A5-54-12951

Bracket

3

01010-81230

Bolt

4

01643-31232

Washer

5

2A5-54-11960

Yoke

6

2A5-54-11951

Damper

7

04205-30825

Pin

8

01640-20816

Washer

9

04052-20833

Pin

10

2A5-54-11641

Frame

11

2A5-54-11573

Frame

12

205-03-71440

Sheet

13

2A5-54-11591

Sheet

14

2A5-54-11611

Sheet

15

2A5-54-11621

Sheet

16

2A5-54-11651

Sheet

17

2A5-54-11661

Sheet

18

2A5-54-13551

Sheet

19

2A5-54-14451

Sheet

20

2A5-54-14460

Sheet

21

01010-81230

Bolt

22

01643-31232

Washer

Выбрано товаров: 22