Запчасти Komatsu PC290LC-10 M- КАБИНА ЛЕВ. ДВЕРЬ (/) ЧАСТИ КОРПУСА

Схема запчастей Komatsu PC290LC-10 - M- КАБИНА ЛЕВ. ДВЕРЬ (/) ЧАСТИ КОРПУСА
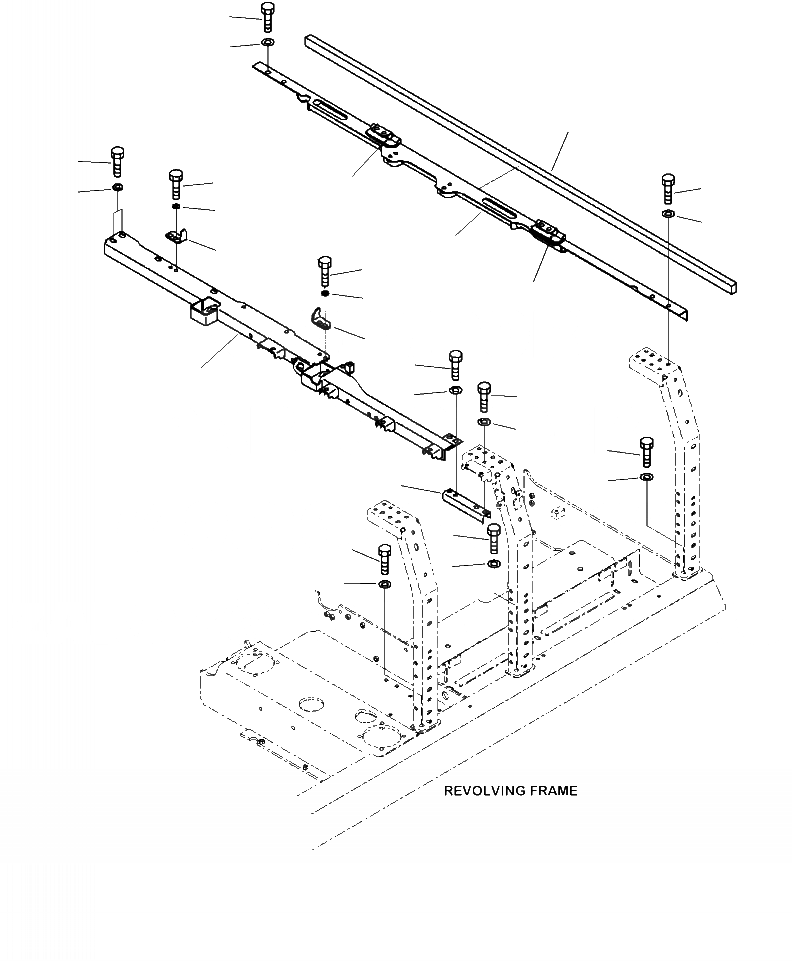
1
2
3
4
5
6
5
6
7
8
8
9
10
11
10
11
10
11
10
11
10
11
10
11
10
11
12
13
FIT
1:1
100%

Артикул

Название

Примечание

Количество

1

2A5-54-13121

FRAME

2

2A5-54-13113

FRAME

3

2A5-54-14470

BRACKET

4

2A5-54-14480

BRACKET

5

203-54-56970

WASHER

6

01010-81025

BOLT

7

206-54-35320

FRAME

8

206-54-35370

HINGE, WELDED

9

2A5-54-12991

SHEET

10

01010-81230

BOLT

11

01643-31232

WASHER

12

01010-81230

BOLT

13

175-54-34170

WASHER

Выбрано товаров: 13