Запчасти Komatsu PC290LC-6K ПРАВ. ДВЕРЬ (КАБИНА)(№K-) ЧАСТИ КОРПУСА

Схема запчастей Komatsu PC290LC-6K - ПРАВ. ДВЕРЬ (КАБИНА)(№K-) ЧАСТИ КОРПУСА
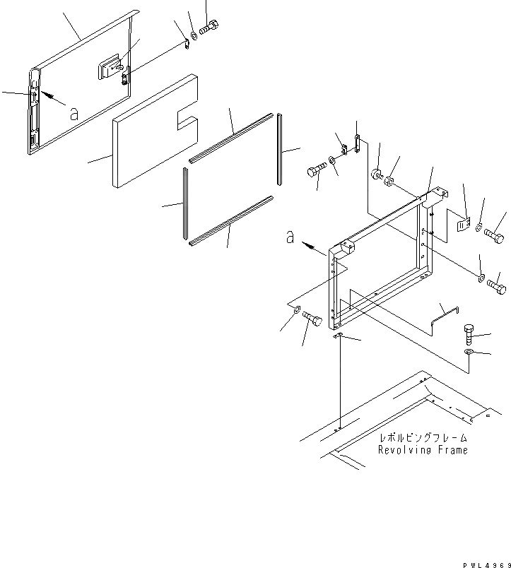
1
2
3
4
5
6
7
8
9
10
11
12
13
14
15
16
17
18
19
20
21
22
23
24
25
26
26
27
27
FIT
1:1
100%

Артикул

Название

Примечание

Количество

|1

20Y-54-K6620

DOOR ASS'Y,R.H.

1

20Y-54-K7680

COVER

2

20Y-54-K9840

HINGE (WELDED)

3

198-54-41982

LOCK ASS'Y

4

205-54-53550

DOVE TAIL

5

01010-80612

BOLT

6

01643-30623

WASHER

7

01010-81225

BOLT

8

01643-31232

WASHER

9

20Y-54-K6571

FRAME

10

20Y-54-28170

BRACKET

11

01010-81230

BOLT

12

01643-31232

WASHER

13

205-54-51970

DOVE TAIL

14

01010-80616

BOLT

15

01643-30623

WASHER

16

20Y-54-K7421

PLATE

17

01010-81230

BOLT

18

01643-31232

WASHER

19

20Y-54-29232

BAR

20

20Y-54-11611

STOPPER

21

01580-11008

NUT

22

207-54-52690

PLATE

23

01010-81230

BOLT

24

01643-31232

WASHER

25

20Y-54-28361

SHEET

26

20Y-54-29251

SEAL

27

20Y-54-K7430

SEAL

Выбрано товаров: 28