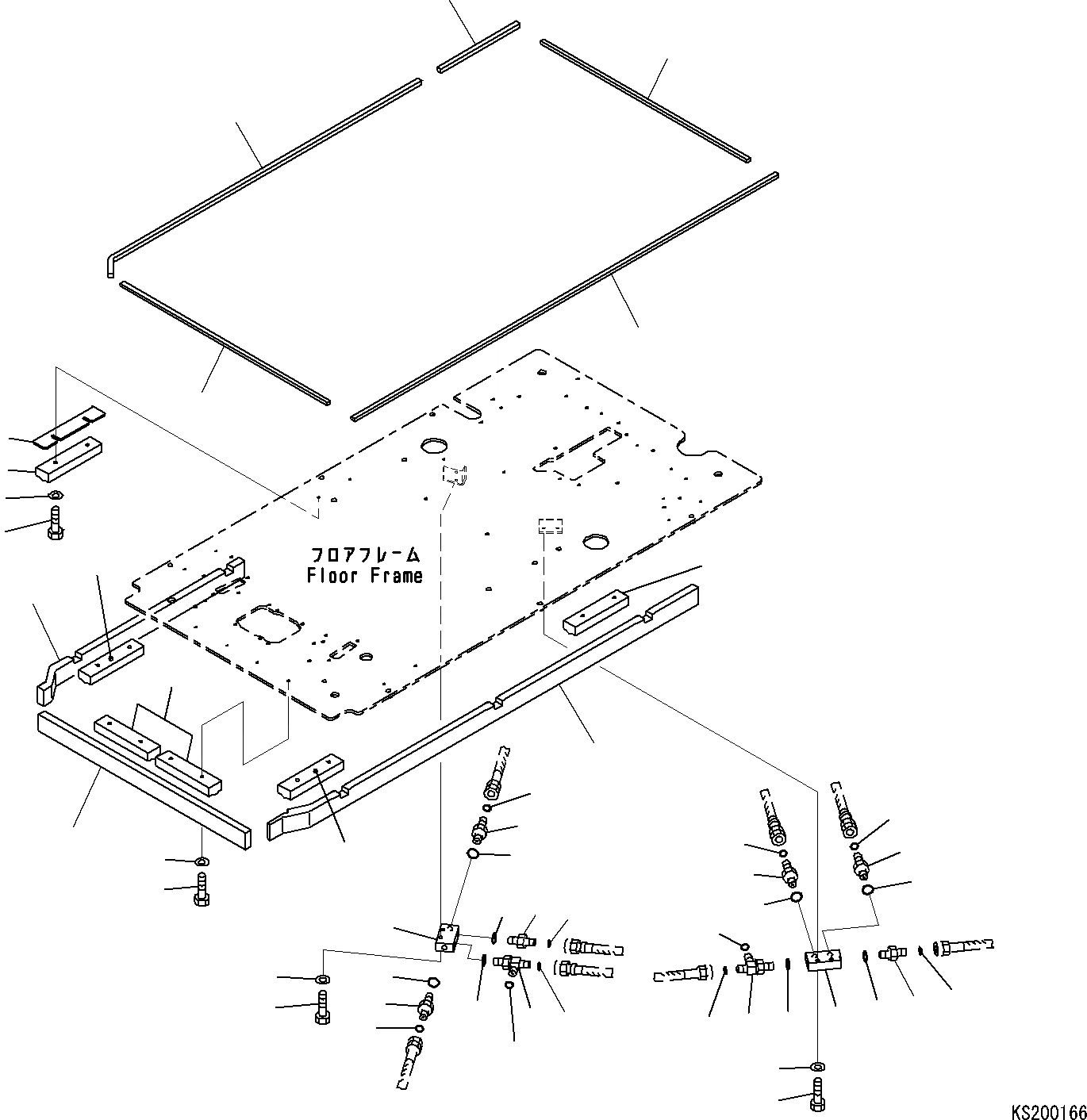
Запчасти Komatsu PC290LC-8K КАБИНА (/) (P, T БЛОК И ПОЛ УПЛОТНЕНИЕ) ( АКТУАТОР) K OPERATORґS ОБСТАНОВКА И СИСТЕМА УПРАВЛЕНИЯ

Схема запчастей Komatsu PC290LC-8K - КАБИНА (/) (P, T БЛОК И ПОЛ УПЛОТНЕНИЕ) ( АКТУАТОР) K OPERATORґS ОБСТАНОВКА И СИСТЕМА УПРАВЛЕНИЯ
15
14
9
24
23
5
8
13
8
20
3
2
7
19
21
22
4
6
1
9
7
29
28
26
25
27
12
11
16
17
18
21
10
19
20
32
33
31
33
30
33
35
34
33
38
37
23
11
36
33
FIT
1:1
100%

Артикул

Название

Примечание

Количество

1

20Y-62-15831

Block

2

01010-81045

Bolt

3

01643-31032

Washer

4

02781-0031D

Union

5

02896-11009

O-Ring

6

07002-11423

O-Ring

7

02781-0021D

Union

8

02896-11008

O-Ring

9

07002-11423

O-Ring

10

11Y-62-12330

Tee

11

02896-11008

O-Ring

12

07002-11423

O-Ring

13

20Y-62-15831

Block

14

01010-81045

Bolt

15

01643-31032

Washer

16

02781-0031D

Union

17

02896-11009

O-Ring

18

07002-11423

O-Ring

19

02781-0021D

Union

20

02896-11008

O-Ring

21

07002-11423

O-Ring

22

11Y-62-12330

Tee

23

02896-11008

O-Ring

24

07002-11423

O-Ring

25

20Y-53-14910

Seal

26

20Y-53-14920

Seal

27

20Y-53-14930

Seal

28

20Y-53-14940

Seal

29

20Y-53-14950

Seal

30

20Y-53-14963

Sheet

|30

20Y-53-14962

Sheet

31

20Y-53-14973

Sheet

|31

20Y-53-14972

Sheet

32

20Y-53-14983

Sheet

|32

20Y-53-14982

Sheet

33

20Y-53-14831

Sheet

34

01010-80830

Bolt

35

01643-30823

Washer

36

20Y-53-14841

Plate

37

01010-80840

Bolt

38

01643-30823

Washer

Выбрано товаров: 41