Качественные детали и логистика
Оригинальные и аналоговые запчасти с доставкой по России, Казахстану и Беларуси
©2022 PartSell ООО "Система" ИНН 2463123282 ОГРН 1212400004838
Центральный офис: г. Красноярск, Академика Киренского, д.87, пом.4
Телефон: 8 (800) 777-65-74 Email: zakaz@partsell.ru
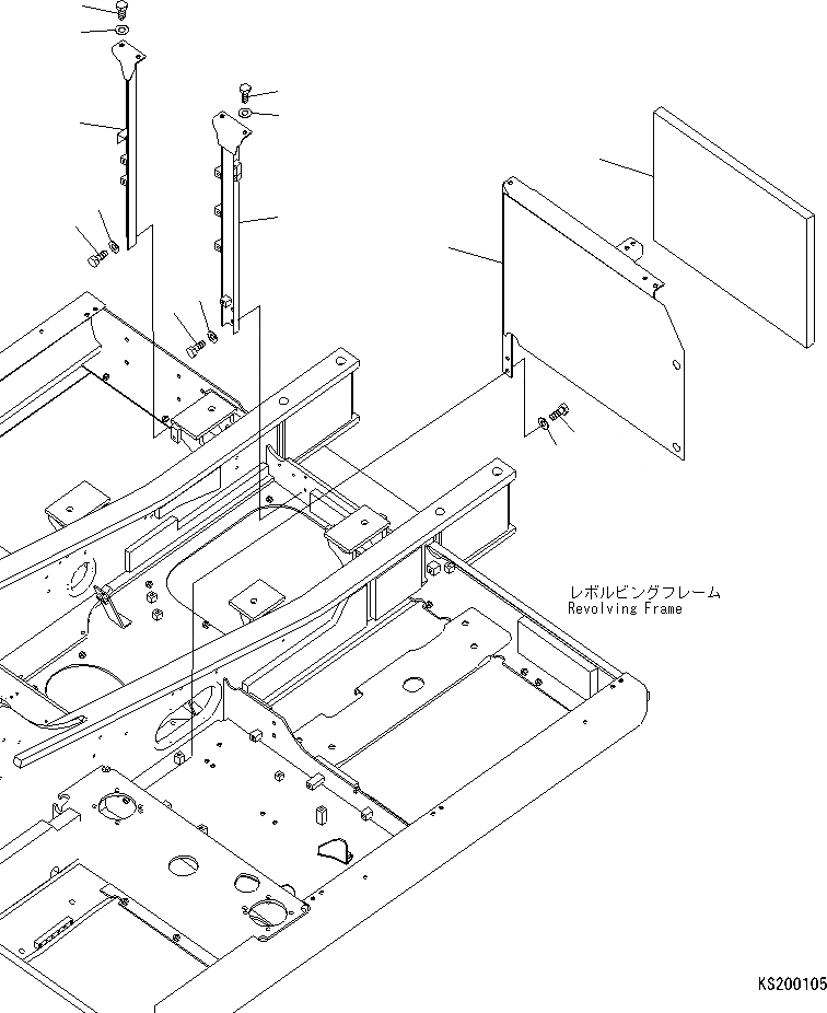
КАБИНА РАМА
№
Артикул
Название
Примечание
Количество
1
20Y-54-71211
Frame
2
20Y-54-72431
|2
20Y-54-72430
|3
20Y-54-71271
3
20Y-54-71251
4
20Y-54-61760
Sheet
5
01010-81230
Bolt
6
01643-31232
Washer
Выбрано товаров: 0