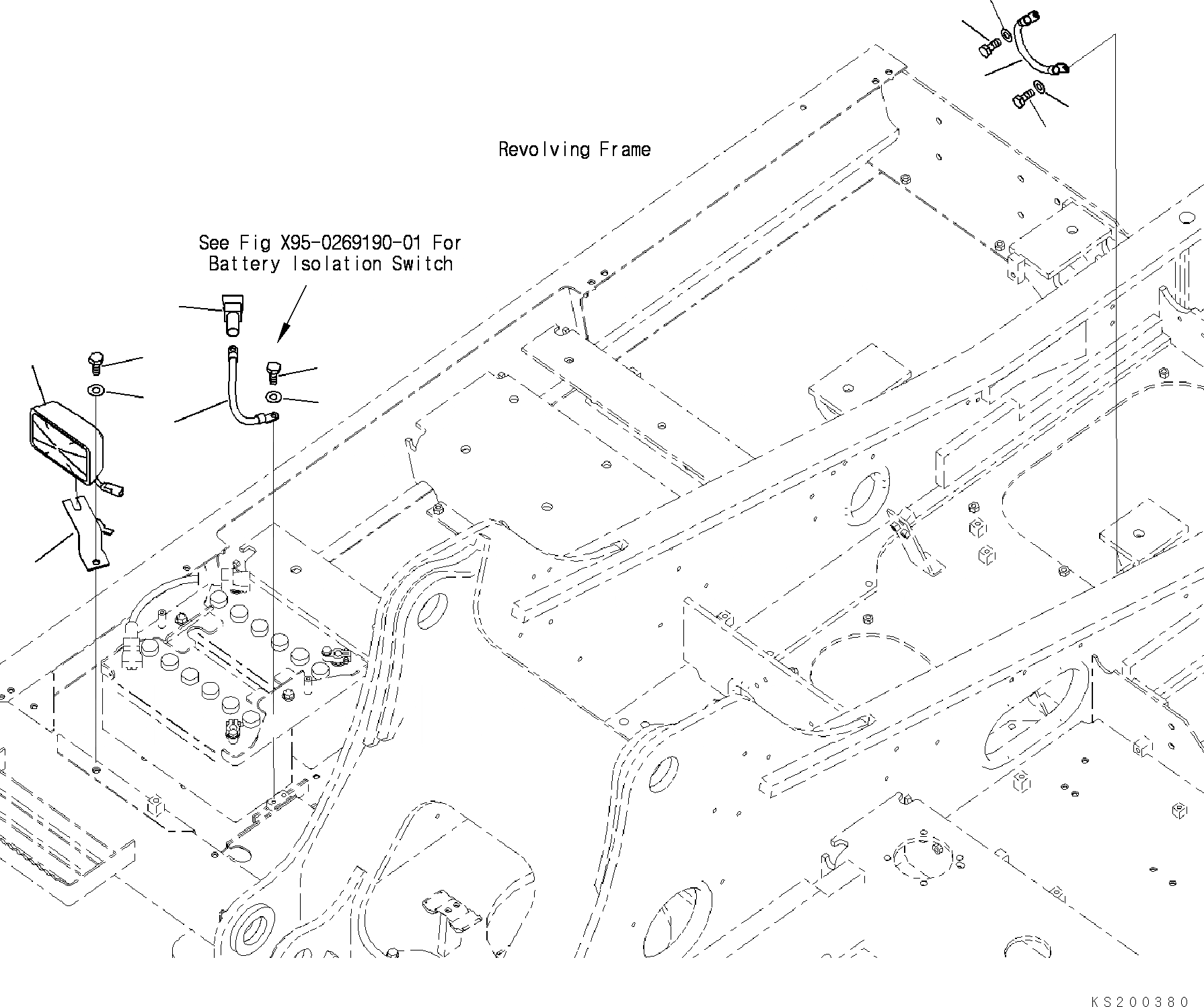
Запчасти Komatsu PC290LC-8K ЭЛЕКТРИЧ. ЭЛЕКТРОПРОВОДКА (/) E ЭЛЕКТРИКА

Схема запчастей Komatsu PC290LC-8K - ЭЛЕКТРИЧ. ЭЛЕКТРОПРОВОДКА (/) E ЭЛЕКТРИКА
2
7
8
1
3
4
5
6
11
10
9
10
11
FIT
1:1
100%

Артикул

Название

Примечание

Количество

1

08028-43030

Cable

2

08038-22511

Cap, Terminal

3

01010-81025

Bolt

4

01643-31032

Washer

5

20Y-06-K2760

Light Assembly, Working

6

20Y-06-41690

Bracket

7

01010-81230

Bolt

8

01643-31232

Washer

9

08028-43030

Cable

10

01010-81020

Bolt

11

01643-31032

Washer

Выбрано товаров: 11