Запчасти Komatsu PC290LC НАКЛОН. КАБИНА ГРУППА J ОСНОВНАЯ РАМА И ЕЕ ЧАСТИ

Схема запчастей Komatsu PC290LC - НАКЛОН. КАБИНА ГРУППА J ОСНОВНАЯ РАМА И ЕЕ ЧАСТИ
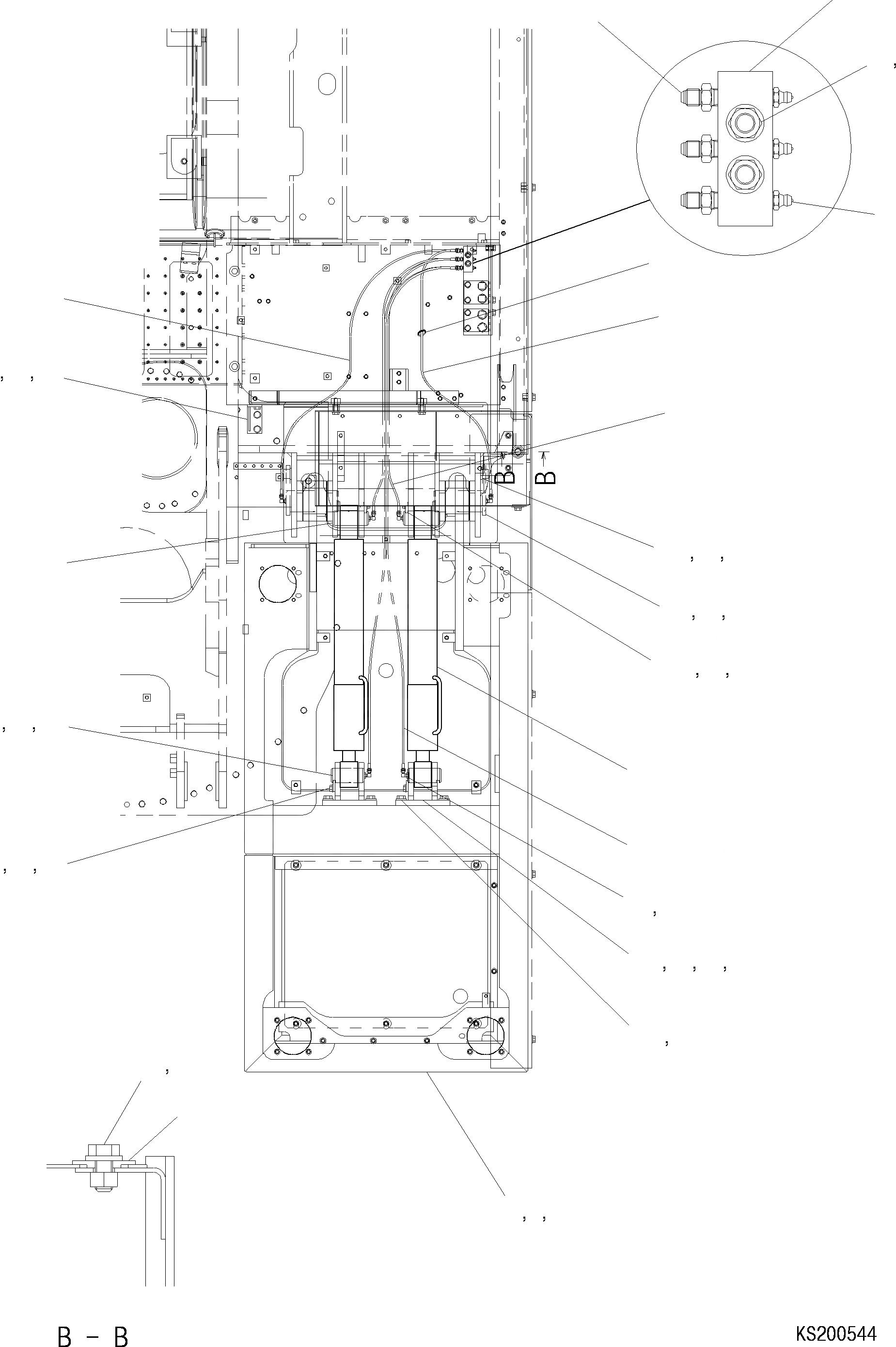
10
41
40
39
27
32
31
23
26
25
24
42
43
44
1
2
3
4
5
6
7
8
9
11
12
13
14
15
16
17
18
19
20
21
22
28
29
30
33
36
37
38
34
35
FIT
1:1
100%

Артикул

Название

Примечание

Количество

1

207-54-KC262

FRAME

2

07143-10707

BUSHING

3

07145-00075

SEAL DUST

4

207-63-KA381

CYLINDER A.

5

20Y-54-83780

ELBOW

6

207-70-KD290

ADAPTOR

7

206-62-KB620

HOSE

8

206-62-KB630

HOSE

9

206-62-KB640

HOSE

10

206-62-KB650

HOSE

11

08034-20519

BAND

12

208-62-KB730

BLOCK

13

01010-81030

BOLT

14

01643-31032

WASHER

15

20Y-54-83760

ADAPTOR

16

07020-00000

FITTING

17

207-70-KC650

PIN

18

01010-82030

BOLT

19

01643-32060

WASHER

20

207-70-KD250

SPACER

21

207-70-KD210

SHIM

22

207-70-KD220

SHIM

23

207-54-KC320

PIN

24

207-54-KB250

PLATE

25

01010-81220

BOLT

26

01643-31232

WASHER

27

207-54-KC320

PIN

28

207-54-KB250

PLATE

29

01010-81220

BOLT

30

01643-31232

WASHER

31

207-70-KD230

SHIM

32

207-70-KD240

SHIM

33

207-54-KC311

BRACKET

34

01010-81650

BOLT

35

01643-51645

WASHER

36

207-70-KC680

SHIM

37

207-70-KC690

SHIM

38

207-70-KD270

SHIM

39

01010-81230

BOLT

40

01643-31232

WASHER

41

206-54-KA440

BRACKET

42

01010-81225

BOLT

43

01643-31232

WASHER

44

20Y-54-12550

COLLAR

Выбрано товаров: 0