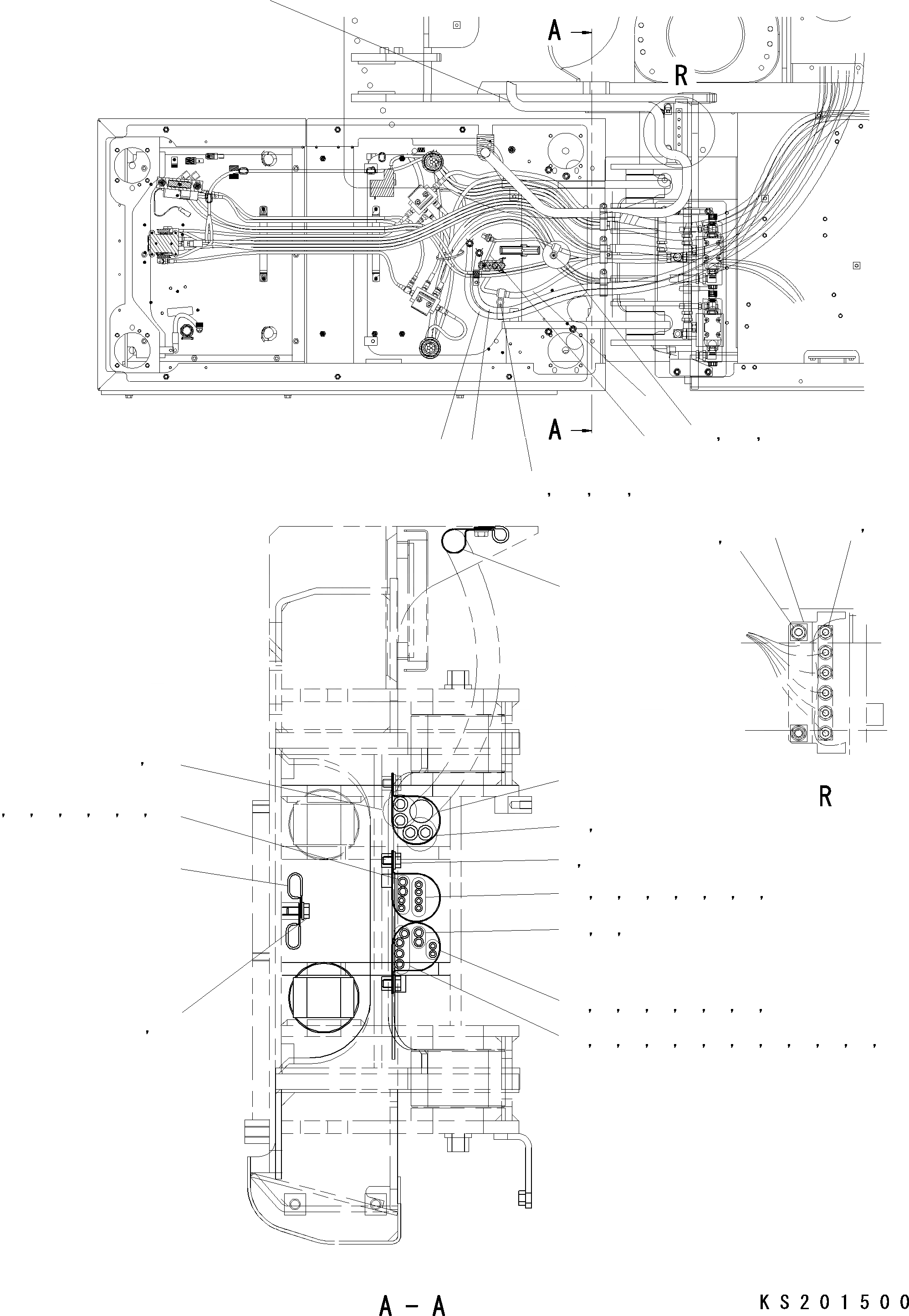
Запчасти Komatsu PC290LC КАБИНА КРЕПЛЕНИЕ И ПАТРУБКИ (№K8) K OPERATORґS ОБСТАНОВКА И СИСТЕМА УПРАВЛЕНИЯ

Схема запчастей Komatsu PC290LC - КАБИНА КРЕПЛЕНИЕ И ПАТРУБКИ (№K8) K OPERATORґS ОБСТАНОВКА И СИСТЕМА УПРАВЛЕНИЯ
21
23
60
61
62
22
25
24
56
57
58
59
5
8
9
7
6
4
23
22
3
43
42
41
40
39
38
37
24
25
1
2
10
29
30
31
32
33
34
35
36
26
27
28
13
14
15
16
17
18
19
20
12
11
44
45
46
47
48
49
50
51
52
53
54
55
FIT
1:1
100%

Артикул

Название

Примечание

Количество

1

01010-81220

BOLT

2

01643-31232

WASHER

3

21M-62-15440

CLIP

4

04434-53412

CLIP

5

20Y-06-81750

COVER

6

01010-81220

BOLT

7

01643-31232

WASHER

8

01010-81025

BOLT

9

01643-31032

WASHER

10

04435-51712

CLIP

11

01010-81225

BOLT

12

01643-31232

WASHER

|13

206-62-KA791

HOSE A. (ATT 1 PPC)

13

02760-00229

HOSE

14

20Y-62-22810

BAND (YELLOW)

15

02760-00229

HOSE

16

20Y-62-52330

HOSE

17

20Y-62-22790

BAND (RED)

18

208-62-72480

HOSE

19

20Y-62-22820

BAND (BLUE)

20

08034-20519

BAND

21

206-06-KA151

HARNESS

22

206-810-KA10

HOSE (A/C)

23

206-810-KA20

HOSE (A/C)

24

206-810-KA30

HOSE (A/C HEATER)

25

206-810-KA40

HOSE (A/C HEATER)

|26

206-62-KA610

HOSE A. (P & T)

26

206-62-KA620

HOSE

27

206-62-KA630

HOSE

28

20Y-62-22790

BAND (RED)

|29

206-62-KA641

HOSE A. (TRAVEL PPC)

29

206-62-KA651

HOSE

30

206-62-KA661

HOSE

31

20Y-62-22820

BAND (BLUE)

32

206-62-KA671

HOSE

33

20Y-62-22850

BAND (GREEN)

34

206-62-KA681

HOSE

35

20Y-62-22790

BAND (RED)

36

08034-20536

BAND

|37

206-62-KA690

HOSE A. (PPC LH)

37

206-62-KA710

HOSE

38

20Y-62-22790

BAND (RED)

39

20Y-62-22810

BAND (YELLOW)

40

206-62-KA720

HOSE

41

20Y-62-22820

BAND (BLUE)

42

20Y-62-53410

HOSE

43

20Y-62-53420

HOSE

|44

206-62-KA730

HOSE A. (PPC RH)

44

206-62-KA740

HOSE

45

20Y-62-22830

BAND (WHITE)

46

206-62-KA750

HOSE

47

20Y-62-22840

BAND (BLACK)

48

206-62-KA760

HOSE

49

20Y-62-22850

BAND (GREEN)

50

206-62-KA770

HOSE

51

20Y-62-22860

BAND (BROWN)

52

208-62-72870

HOSE

53

20Y-62-22820

BAND (BLUE)

54

20Y-62-42251

HOSE

55

20Y-62-22790

BAND (RED)

56

04434-52511

CLIP

57

141-06-11220

CLIP

58

01010-81020

BOLT

59

01643-31032

WASHER

60

04434-52110

CLIP

61

01010-81020

BOLT

62

01643-31032

WASHER

Выбрано товаров: 67