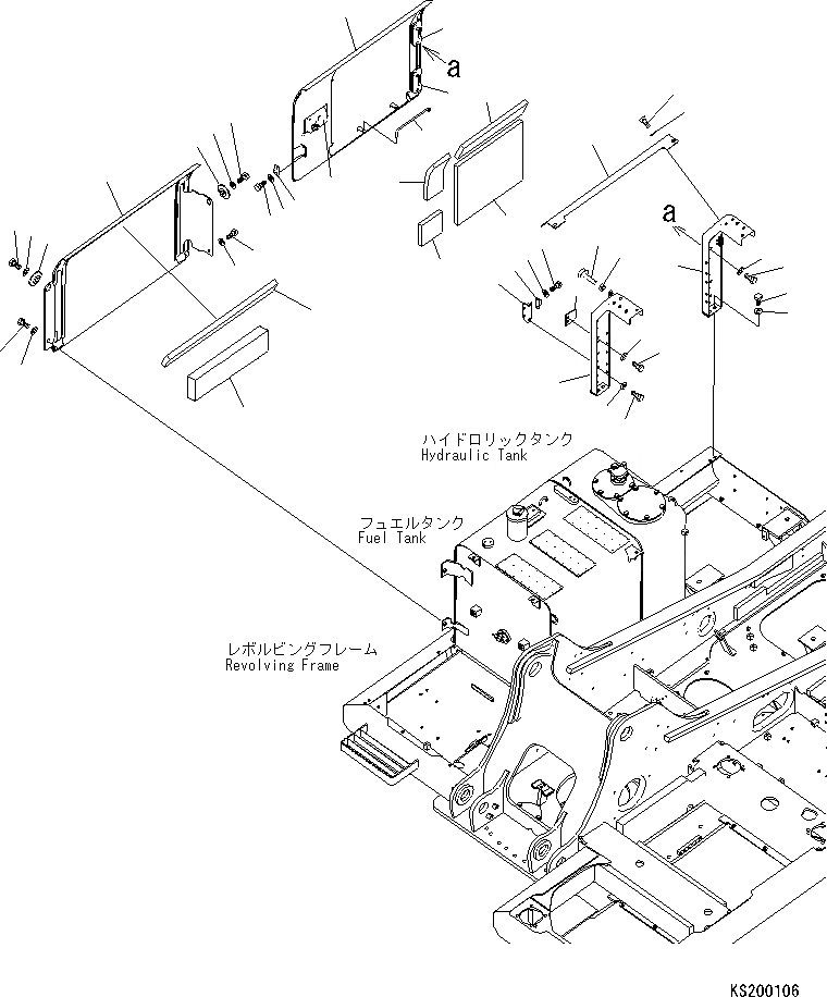
Запчасти Komatsu PC290NLC-8K БОКОВ. КРЫШКА, RHS (№K-K99) M ЧАСТИ КОРПУСАS И КРЫШКИ

Схема запчастей Komatsu PC290NLC-8K - БОКОВ. КРЫШКА, RHS (№K-K99) M ЧАСТИ КОРПУСАS И КРЫШКИ
7
6
27
7
26
29
8
14
16
15
36
37
35
32
36
37
35
36
37
34
33
37
36
28
25
3
4
5
23
24
21
22
20
17
11
1
13
12
18
19
2
10
9
30
31
FIT
1:1
100%

Артикул

Название

Примечание

Количество

1

20Y-54-71411

Frame

2

20Y-54-71421

Frame

3

20Y-54-71431

Frame

4

01010-81225

Bolt

5

01643-31232

Washer

6

206-54-21711

Cover

|6

206-54-21710

Cover

7

20Y-54-63414

Hinge, Welded

8

20Y-54-71491

Lock Assembly

|8

198-54-41982

Lock Assembly

9

01010-81225

Bolt

10

01643-31232

Washer

11

20Y-54-61470

Plate

12

01010-81225

Bolt

13

01643-31232

Washer

14

205-54-53550

Dovetail

15

01010-80612

Bolt

16

01643-30623

Washer

17

20Y-54-28170

Bracket

18

01010-81225

Bolt

19

01643-31232

Washer

20

205-54-51971

Dove Tail

21

01010-80616

Bolt

22

01643-30623

Washer

23

20Y-54-11611

Stopper

24

01580-11008

Nut

25

20Y-54-71440

Sheet

26

20Y-54-29232

Bar

27

20Y-54-72690

Sheet

28

20Y-54-72720

Sheet

29

20Y-54-72710

Sheet

30

01010-81230

Bolt

31

01643-31232

Washer

|32

20Y-54-71153

Cover

|32

20Y-54-71152

Cover

32

Cover

33

20Y-54-61391

Sheet

34

20Y-54-76910

Sheet

35

208-54-57180

Collar

36

01010-81230

Bolt

37

01643-31232

Washer

Выбрано товаров: 41