Запчасти Komatsu PC300-6 РАМА (КАБИНА) (МОРОЗОУСТОЙЧИВ. СПЕЦИФ-Я) (ПЕЧКА)(№-) ЧАСТИ КОРПУСА

Схема запчастей Komatsu PC300-6 - РАМА (КАБИНА) (МОРОЗОУСТОЙЧИВ. СПЕЦИФ-Я) (ПЕЧКА)(№-) ЧАСТИ КОРПУСА
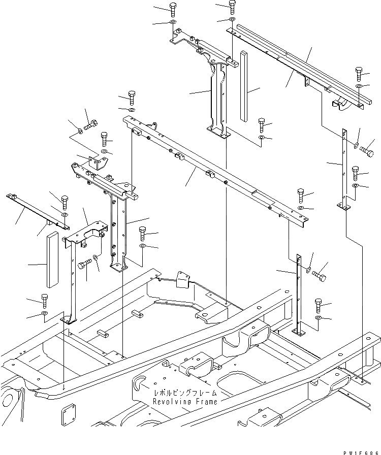
1
2
3
4
5
6
7
8
9
10
10
11
11
11
11
12
12
12
12
13
14
15
16
17
18
18
19
19
20
21
22
22
23
23
24
25
25
26
26
27
28
29
30
31
32
FIT
1:1
100%

Артикул

Название

Примечание

Количество

1

207-977-6341

FRAME

2

207-54-61522

FRAME

3

207-54-61590

SHEET

4

01010-81235

BOLT

5

01643-31232

WASHER

6

01010-81235

BOLT

7

01643-31232

WASHER

8

01010-81235

BOLT

9

01643-31232

WASHER

10

207-54-61531

FRAME

11

01010-81230

BOLT

12

01643-31232

WASHER

13

207-54-61540

BRACKET

14

01010-81230

BOLT

15

01643-31232

WASHER

16

01010-81230

BOLT

17

175-54-34170

WASHER

18

01010-81230

BOLT

19

01643-31232

WASHER

20

207-54-61562

FRAME

21

207-54-61580

SHEET

22

01010-81230

BOLT

23

01643-31232

WASHER

24

207-54-61571

FRAME

25

01010-81230

BOLT

26

01643-31232

WASHER

27

01010-81230

BOLT

28

01643-31232

WASHER

29

207-977-6540

FRAME

30

207-54-61620

SHEET

31

207-54-61611

FRAME

32

207-54-61650

SHEET

Выбрано товаров: 32