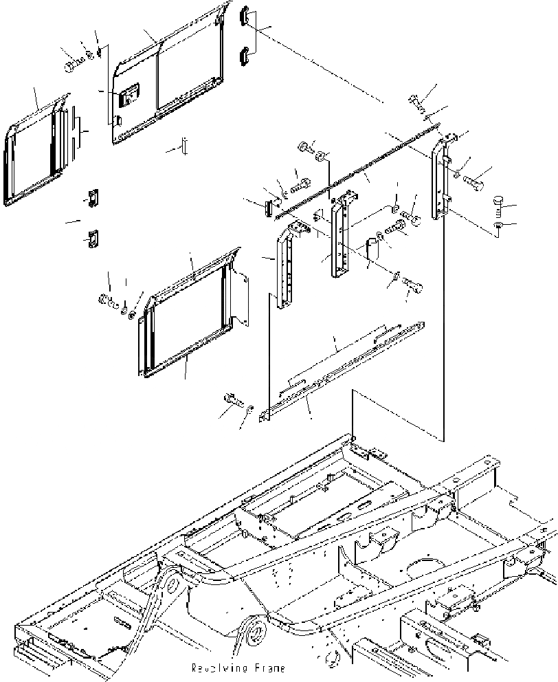
Запчасти Komatsu PC300-7 ПРАВ. ДВЕРЬ (КАБИНА) M ЧАСТИ КОРПУСА

Схема запчастей Komatsu PC300-7 - ПРАВ. ДВЕРЬ (КАБИНА) M ЧАСТИ КОРПУСА
37
16
17
13
23
21
22
24
15
27
11
26
25
28
29
14
19
18
31
32
30
20
7
38
39
40
41
2
1
9
10
8
4
5
3
6
16
17
12
34
33
35
36
FIT
1:1
100%

Артикул

Название

Примечание

Количество

1

207-54-71331

COVER

2

207-54-61870

HINGE (WELDED)

3

20Y-54-63390

SHEET

4

207-54-71321

COVER

5

198-54-41982

LOCK ASS'Y (WELDED)

6

207-54-61870

HINGE (WELDED)

7

20Y-54-61481

SHEET

8

205-54-53550

DOVE TAIL

9

01010-80612

BOLT

10

01643-30623

WASHER

11

207-54-71211

FRAME

12

207-54-71221

FRAME

13

207-54-71231

PLATE

14

207-54-71241

PLATE

15

207-54-71251

FRAME

16

01010-81230

BOLT

17

01643-31232

WASHER

18

20Y-54-11611

STOPPER

19

01580-11008

NUT

20

20Y-54-28170

BRACKET

21

01010-81230

BOLT

22

01643-31232

WASHER

23

20Y-54-29231

BAR

24

20Y-54-61371

BRACKET

25

01010-81230

BOLT

26

01643-31232

WASHER

27

20Y-54-61470

PLATE

28

01010-81230

BOLT

29

01643-31232

WASHER

30

205-54-51970

DOVE TAIL

31

01010-80616

BOLT

32

01643-30623

WASHER

33

01010-81230

BOLT

34

01643-31232

WASHER

35

01010-81230

BOLT

36

01643-31232

WASHER

37

207-54-71351

COVER

38

207-54-72950

SHEET

39

203-54-62670

COLLAR

40

01010-81230

BOLT

41

01643-31232

WASHER

Выбрано товаров: 41