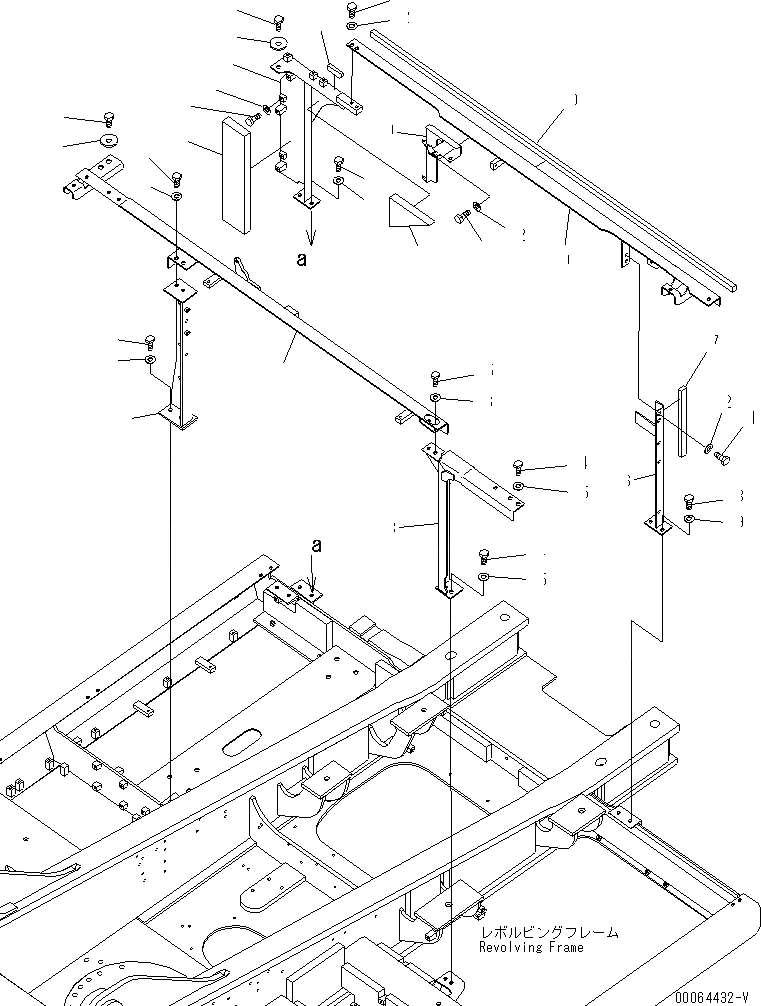
Запчасти Komatsu PC300-8 РАМА (КАБИНА) (ДЛЯ EXTRA ПЛОХ. ТОПЛИВО) ЧАСТИ КОРПУСА

Схема запчастей Komatsu PC300-8 - РАМА (КАБИНА) (ДЛЯ EXTRA ПЛОХ. ТОПЛИВО) ЧАСТИ КОРПУСА
1
2
3
4
5
6
7
8
9
10
11
12
13
14
15
15
16
16
17
18
19
20
21
21
22
22
23
24
24
25
25
26
27
28
29
30
31
32
FIT
1:1
100%

Артикул

Название

Примечание

Количество

1

207-54-76451

FRAME

2

01010-81240

BOLT

3

01643-31232

WASHER

4

207-54-78690

FRAME

5

207-54-77690

SHEET

6

207-54-77710

SHEET

7

207-54-77190

SHEET

8

01010-81230

BOLT

9

01643-31232

WASHER

10

01010-81225

BOLT

11

01643-31232

WASHER

12

01010-81230

BOLT

13

175-54-34170

WASHER

14

207-54-76421

FRAME

15

01010-81230

BOLT

16

01643-31232

WASHER

17

01010-81230

BOLT

18

175-54-34170

WASHER

19

207-54-78670

FRAME

20

207-54-71721

SHEET

21

01010-81230

BOLT

22

01643-31232

WASHER

23

207-54-76410

FRAME

24

01010-81230

BOLT

25

01643-31232

WASHER

26

207-54-76480

FRAME

27

207-54-76491

SHEET

28

01010-81230

BOLT

29

01643-31232

WASHER

30

207-54-78680

BRACKET

31

01010-81230

BOLT

32

01643-31232

WASHER

Выбрано товаров: 32