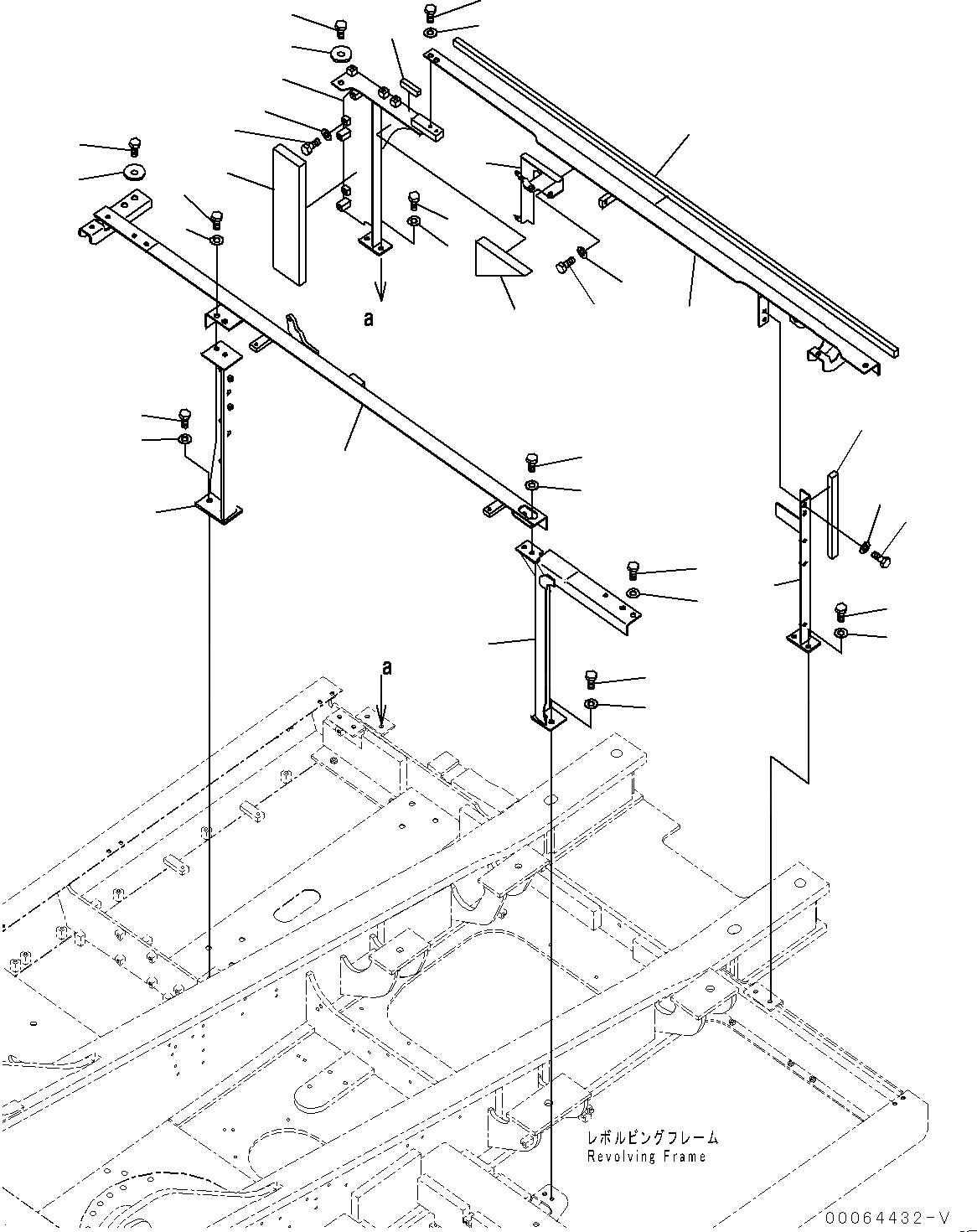
Запчасти Komatsu PC300-8 КАБИНА РАМА (№-) КАБИНА РАМА, ДЛЯ EXTRA ПЛОХ. ТОПЛИВО

Схема запчастей Komatsu PC300-8 - КАБИНА РАМА (№-) КАБИНА РАМА, ДЛЯ EXTRA ПЛОХ. ТОПЛИВО
23
14
1
6
5
15
15
16
16
24
24
25
25
29
28
22
21
13
12
8
10
9
11
18
17
2
3
22
21
7
27
26
4
20
19
30
31
32
FIT
1:1
100%

Артикул

Название

Примечание

Количество

1

207-54-76451

Frame

2

01010-81240

Bolt

3

01643-31232

Washer

4

207-54-78690

Frame

5

207-54-77690

Sheet

6

207-54-77710

Sheet

7

207-54-77190

Sheet

8

01010-81230

Bolt

9

01643-31232

Washer

10

01010-81225

Bolt

11

01643-31232

Washer

12

01010-81230

Bolt

13

175-54-34170

Washer

14

207-54-76421

Frame

15

01010-81230

Bolt

16

01643-31232

Washer

17

01010-81230

Bolt

18

175-54-34170

Washer

19

207-54-78670

Frame

20

207-54-71721

Sheet

21

01010-81230

Bolt

22

01643-31232

Washer

23

207-54-76410

Frame

24

01010-81230

Bolt

25

01643-31232

Washer

26

207-54-76480

Frame

27

207-54-76491

Sheet

28

01010-81230

Bolt

29

01643-31232

Washer

30

207-54-78680

Bracket

31

01010-81230

Bolt

32

01643-31232

Washer

Выбрано товаров: 32