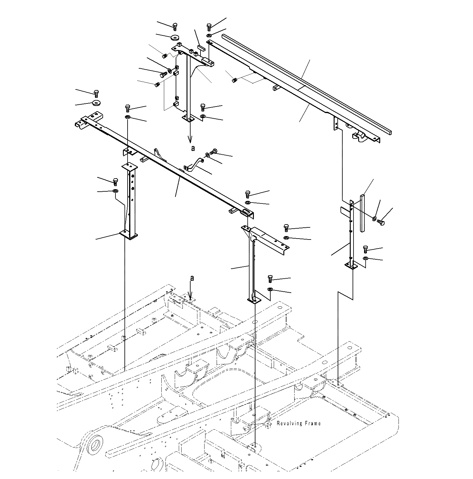
Запчасти Komatsu PC300-8M0 КАБИНА РАМА M

Схема запчастей Komatsu PC300-8M0 - КАБИНА РАМА M
21
22
23
5
10
11
31
9
8
31
18
19
16
17
4
31
6
7
20
28
23
22
29
30
27
26
25
17
16
14
15
13
12
2
3
1
24
25
26
FIT
1:1
100%

Артикул

Название

Примечание

Количество

1

207-54-73630

FRAME

2

01010-81240

BOLT

3

01643-31232

WASHER

4

207-54-73620

FRAME

5

207-54-77190

SHEET

6

01010-81230

BOLT

7

01643-31232

WASHER

8

01010-81225

BOLT

9

01643-31232

WASHER

10

01010-81230

BOLT

11

175-54-34170

WASHER

12

207-54-76421

FRAME

13

207-979-7560

BRACKET

14

01010-81230

BOLT

15

01643-31232

WASHER

16

01010-81230

BOLT

17

01643-31232

WASHER

18

01010-81230

BOLT

19

175-54-34170

WASHER

20

207-54-78670

FRAME

21

207-54-71721

SHEET

22

01010-81230

BOLT

23

01643-31232

WASHER

24

207-54-73611

FRAME

25

01010-81230

BOLT

26

01643-31232

WASHER

27

207-54-76480

FRAME

28

207-54-76491

SHEET

29

01010-81230

BOLT

30

01643-31232

WASHER

31

07049-01215

PLUG

Выбрано товаров: 31