Запчасти Komatsu PC300-8M0 КАБИНА ПЕРЕГОРОДКА., (/) M

Схема запчастей Komatsu PC300-8M0 - КАБИНА ПЕРЕГОРОДКА., (/) M
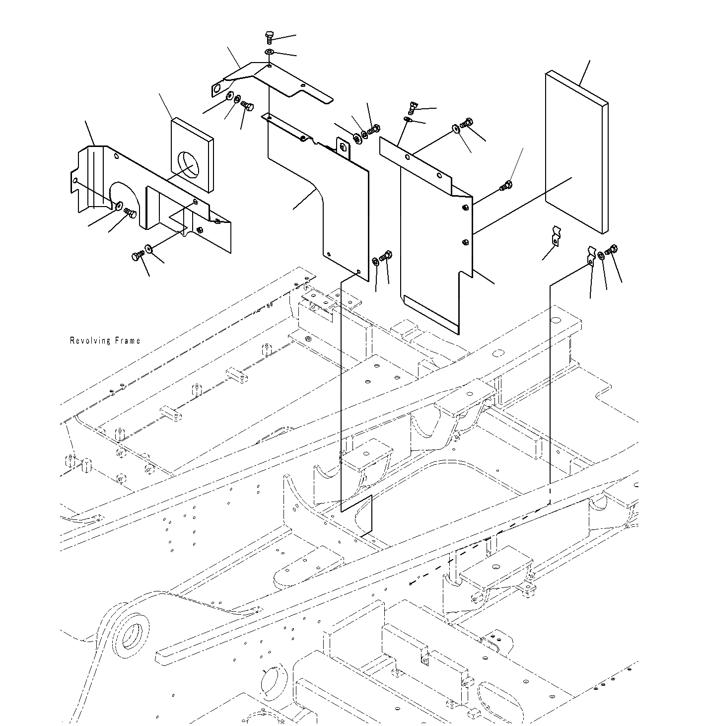
14
11
12
10
10
13
5
6
1
21
20
19
16
15
16
15
24
7
8
9
18
2
3
4
17
23
22
22
23
FIT
1:1
100%

Артикул

Название

Примечание

Количество

1

207-54-73780

COVER

2

207-54-73790

COVER

3

01010-81230

BOLT

4

01643-31232

WASHER

5

01010-81230

BOLT

6

01643-31232

WASHER

7

01010-81230

BOLT

8

01643-31232

WASHER

9

208-54-57180

COLLAR

10

20Y-54-27761

CATCH

11

01010-81230

BOLT

12

01643-31232

WASHER

13

207-54-73751

COVER

14

207-54-72851

SHEET

15

01010-81230

BOLT

16

175-54-34170

WASHER

17

207-54-73761

COVER

18

207-54-74321

SHEET

19

01010-81230

BOLT

20

01643-31232

WASHER

21

208-54-57180

COLLAR

22

01010-81230

BOLT

23

175-54-34170

WASHER

24

22B-54-18630

BOLT

Выбрано товаров: 0