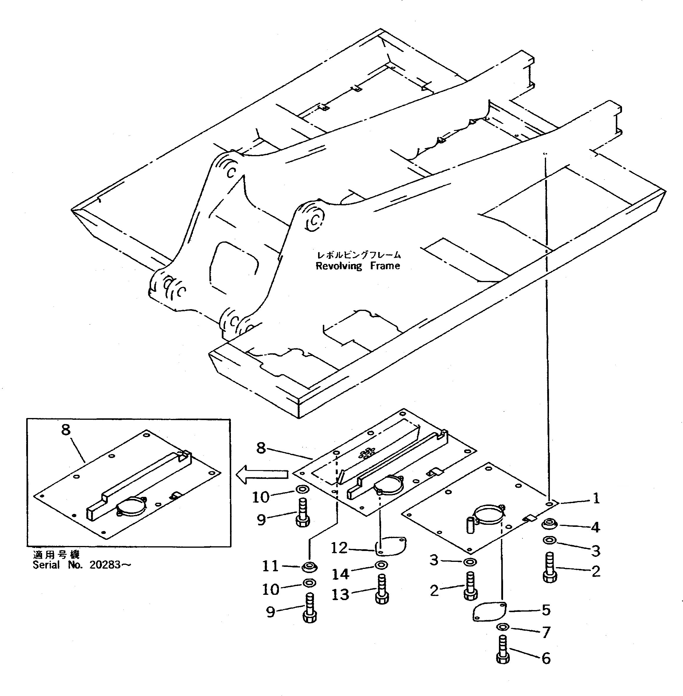
Запчасти Komatsu PC300LC-5 НИЖН. КРЫШКА (ДЛЯ ОСНОВН. РАМА И РАМА ПРАВ.) (КРОМЕ ЯПОН.) ЧАСТИ КОРПУСА

Схема запчастей Komatsu PC300LC-5 - НИЖН. КРЫШКА (ДЛЯ ОСНОВН. РАМА И РАМА ПРАВ.) (КРОМЕ ЯПОН.) ЧАСТИ КОРПУСА
FIT
1:1
100%

Артикул

Название

Примечание

Количество

G-1

207-54-X1530

COVER GROUP

G-1

207-54-X1360

COVER GROUP

1

207-54-51321

COVER

2

01010-51230

BOLT

3

01643-31232

WASHER

4

20Y-54-12550

COLLAR

5

207-54-51440

PLATE

6

01010-51230

BOLT

7

01643-31232

WASHER

8

207-54-51312

COVER

8

207-54-51311

COVER

9

01010-51230

BOLT

10

01643-31232

WASHER

11

20Y-54-12550

COLLAR

12

207-54-51440

PLATE

13

01010-51230

BOLT

14

01643-31232

WASHER

Выбрано товаров: 17