Запчасти Komatsu PC300LC-5 РАМА (ДЛЯ ЛЕВ. COVER) ЧАСТИ КОРПУСА

Схема запчастей Komatsu PC300LC-5 - РАМА (ДЛЯ ЛЕВ. COVER) ЧАСТИ КОРПУСА
FIT
1:1
100%

Артикул

Название

Примечание

Количество

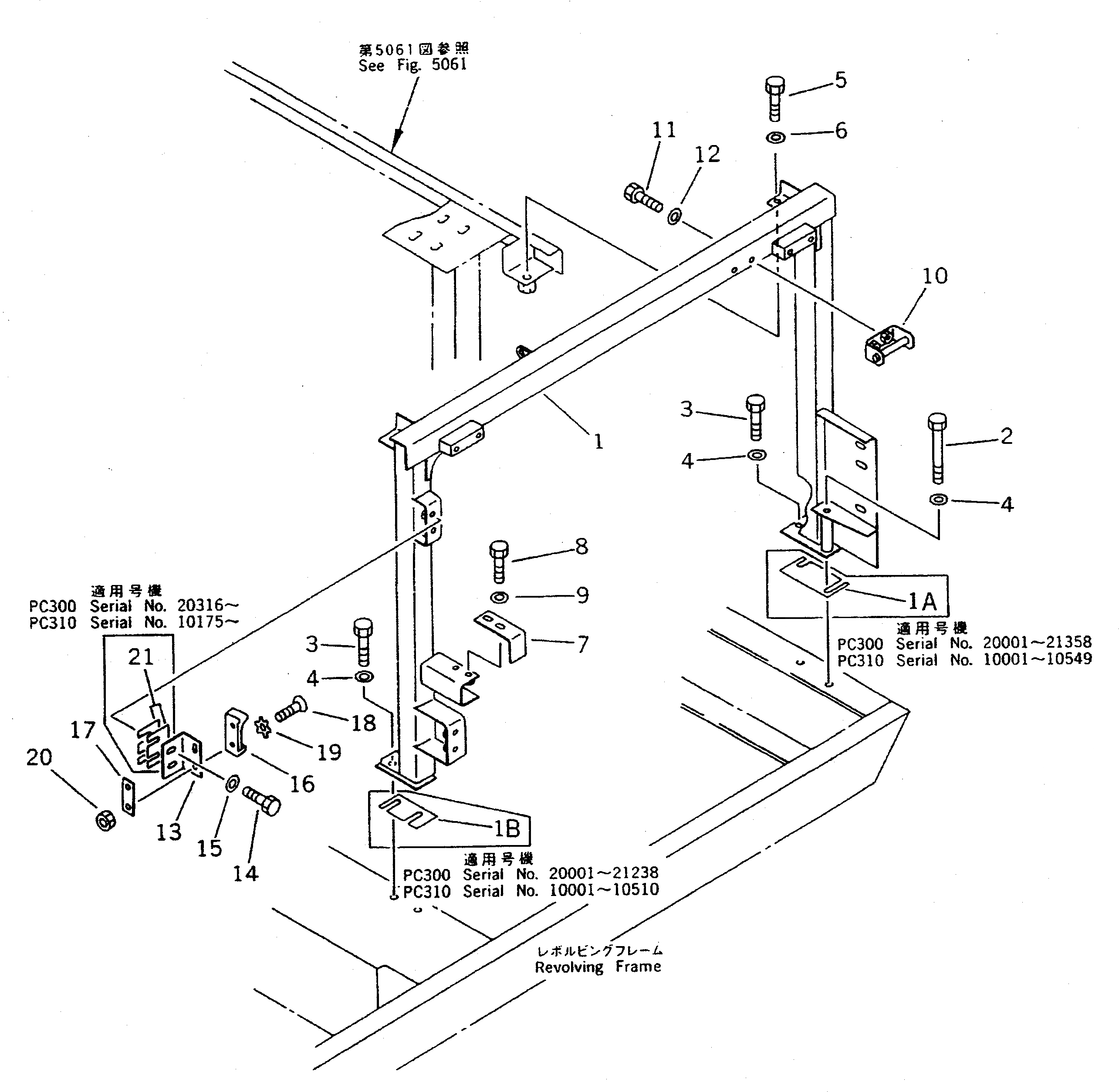
1

207-54-51132

FRAME

1A

207-54-52550

PLATE

1B

207-54-52560

PLATE

2

01011-51230

BOLT

3

01010-51240

BOLT

4

01643-31232

WASHER

5

01010-51240

BOLT

6

01643-31232

WASHER

7

207-54-55130

PLATE

|7

207-54-51481

PLATE

8

01010-51025

BOLT

9

01643-31032

WASHER

10

207-54-31870

BRACKET

11

01010-51025

BOLT

12

01643-31032

WASHER

13

207-54-51611

PLATE

14

01010-51025

BOLT

15

01643-31032

WASHER

16

566-54-13410

STRIKER

17

203-54-56790

PLATE

18

20Y-54-11760

SCREW

19

566-54-13570

WASHER

20

01580-00806

NUT

21

207-54-52690

PLATE

|21

207-54-52690

PLATE

Выбрано товаров: 25