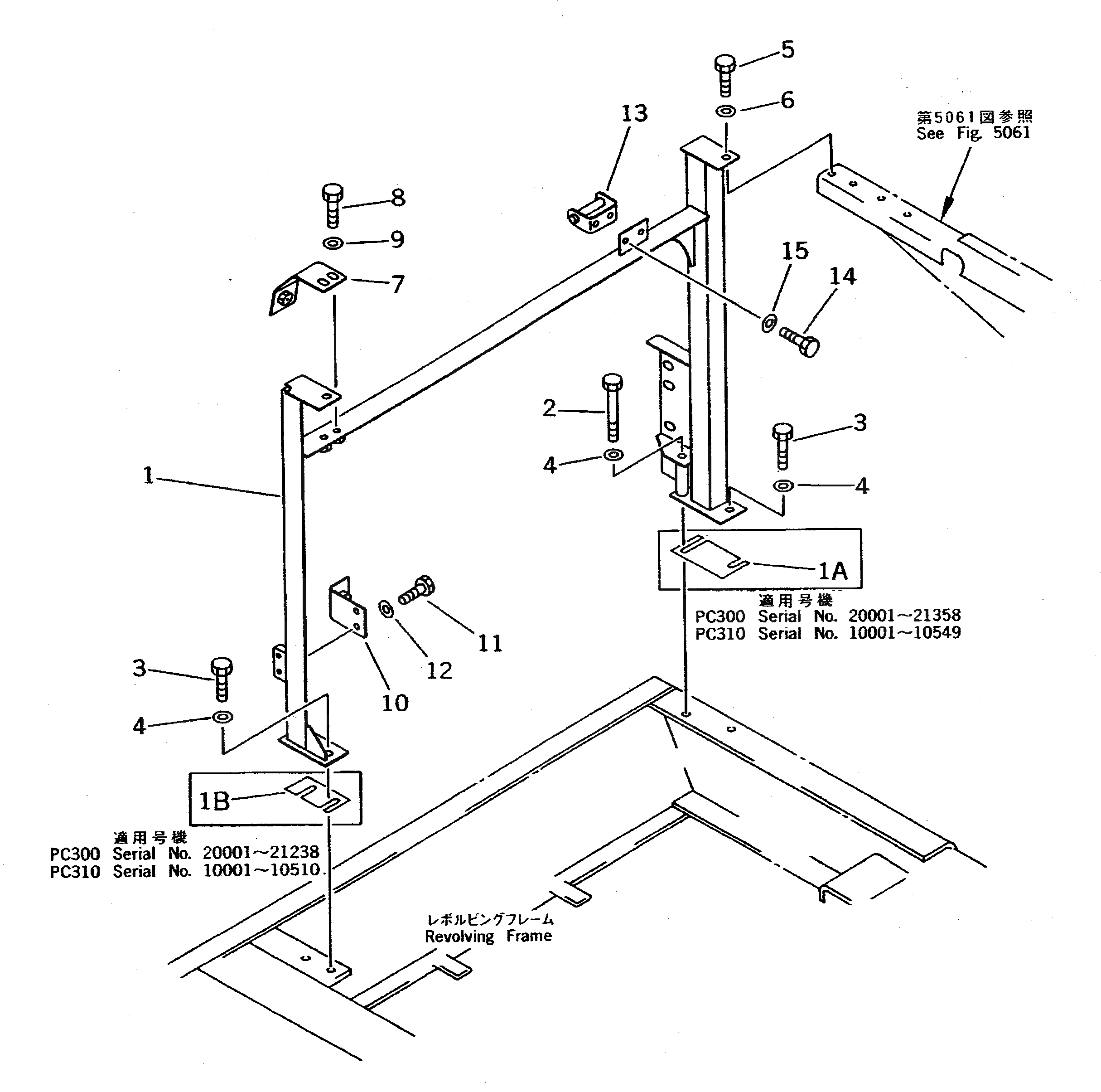
Запчасти Komatsu PC300LC-5 РАМА (ДЛЯ ПРАВ. COVER) ЧАСТИ КОРПУСА

Схема запчастей Komatsu PC300LC-5 - РАМА (ДЛЯ ПРАВ. COVER) ЧАСТИ КОРПУСА
FIT
1:1
100%

Артикул

Название

Примечание

Количество

1

207-54-51721

FRAME,R.H.

1A

207-54-52550

PLATE

1B

207-54-52560

PLATE

2

01011-51230

BOLT

3

01010-51240

BOLT

4

01643-31232

WASHER

5

01010-51230

BOLT

6

01643-31232

WASHER

7

207-54-51560

PLATE

8

01010-51230

BOLT

|8

01010-51235

BOLT

9

01643-31232

WASHER

10

207-54-51570

PLATE

11

01010-51230

BOLT

12

01643-31232

WASHER

13

207-54-31870

BRACKET

14

01010-51025

BOLT

|14

01010-51020

BOLT

15

01643-31032

WASHER

Выбрано товаров: 19