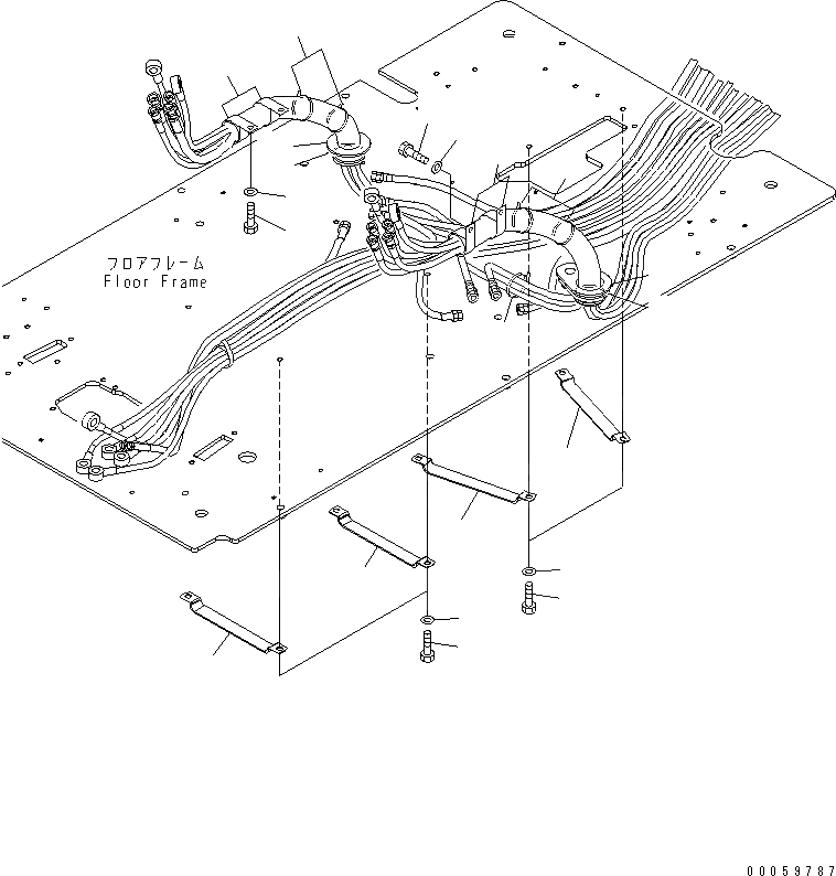
Запчасти Komatsu PC300LC-8 КАБИНА (ПОЛ) (P.P.C. КРЕПЛЕНИЕ ШЛАНГОВ)(№-) КАБИНА ОПЕРАТОРА И СИСТЕМА УПРАВЛЕНИЯ

Схема запчастей Komatsu PC300LC-8 - КАБИНА (ПОЛ) (P.P.C. КРЕПЛЕНИЕ ШЛАНГОВ)(№-) КАБИНА ОПЕРАТОРА И СИСТЕМА УПРАВЛЕНИЯ
1
2
3
4
5
6
7
8
9
10
11
12
13
13
13
13
14
14
15
15
16
FIT
1:1
100%

Артикул

Название

Примечание

Количество

1

208-06-19170

CLIP

2

01010-81025

BOLT

3

01643-31032

WASHER

4

08034-20536

BAND

5

207-53-14140

GROMMET

6

08034-20536

BAND

7

04434-53411

CLIP

8

01010-81025

BOLT

9

01643-31032

WASHER

10

08034-20536

BAND

11

20Y-54-65121

GROMMET

12

08034-20536

BAND

13

20Y-62-27770

CLAMP

14

01010-81016

BOLT

15

01643-31032

WASHER

16

08034-20536

BAND

Выбрано товаров: 16