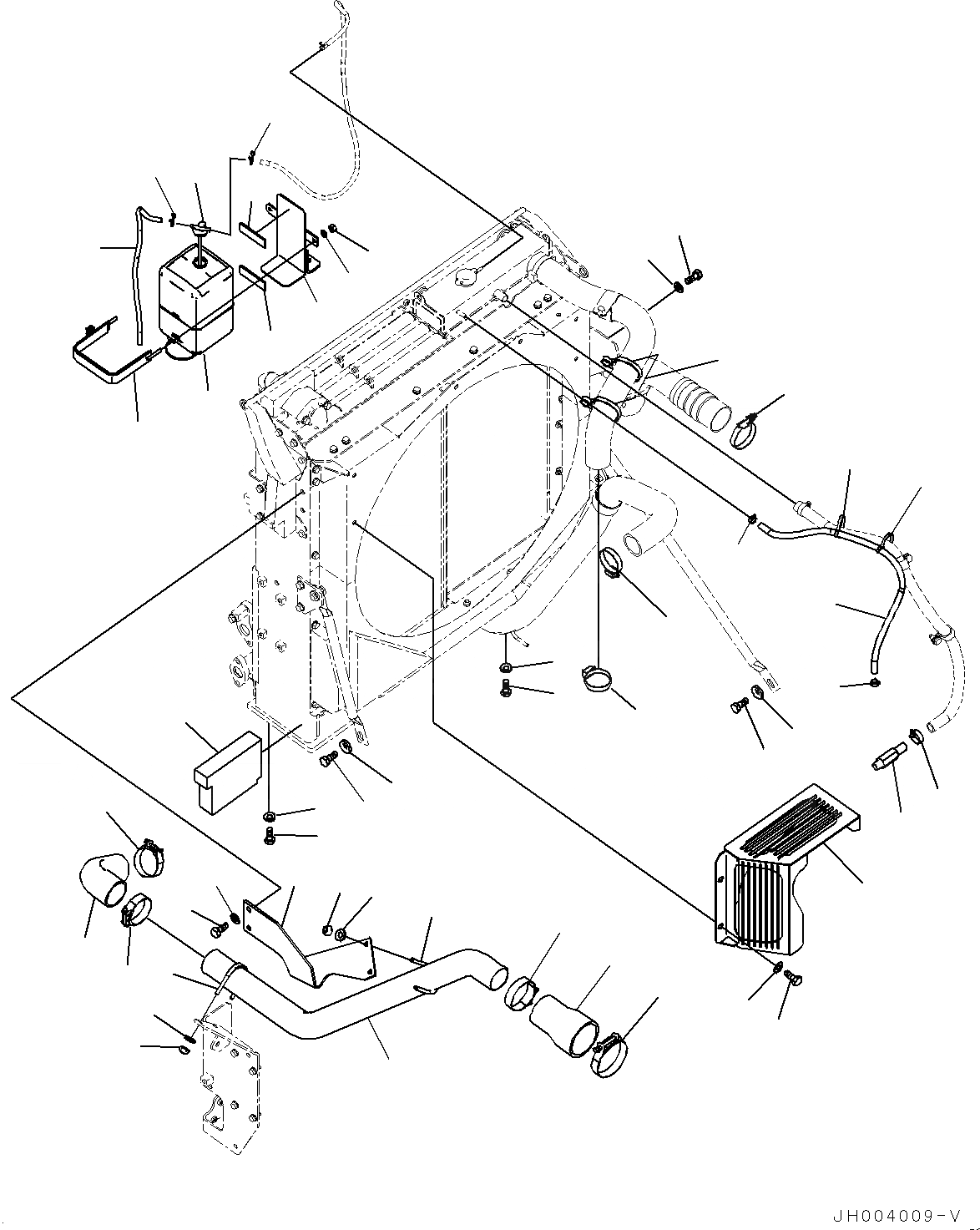
Запчасти Komatsu PC300LC-8 СИСТЕМА ОХЛАЖДЕНИЯ, ВОЗД. ЛИНИЯ ОХЛАЖДЕНИЯ И SUB-БАК (№-) СИСТЕМА ОХЛАЖДЕНИЯ, С АВТОМАТИЧ. КОНДИЦ. ВОЗДУХА, БОЛ. WIND QUANTITY

Схема запчастей Komatsu PC300LC-8 - СИСТЕМА ОХЛАЖДЕНИЯ, ВОЗД. ЛИНИЯ ОХЛАЖДЕНИЯ И SUB-БАК (№-) СИСТЕМА ОХЛАЖДЕНИЯ, С АВТОМАТИЧ. КОНДИЦ. ВОЗДУХА, БОЛ. WIND QUANTITY
7
7
15
17
16
19
6
3
28
21
22
23
14
25
18
5
37
40
32
32
31
30
29
35
34
33
36
10
10
9
9
8
8
13
12
11
39
38
24
24
3
4
4
1
1
2
2
20
26
27
27
27
FIT
1:1
100%

Артикул

Название

Примечание

Количество

1

01010-81640

Bolt

2

01643-31645

Washer

3

01010-81640

Bolt

4

21T-54-16150

Washer

5

207-01-75241

Tube

6

207-01-75250

Hose

7

207-01-75340

Clamp

8

07283-37663

Clip

9

01643-31032

Washer

10

01597-01009

Nut

11

207-01-75210

Bracket

12

01010-81230

Bolt

13

01643-31232

Washer

14

207-03-76440

Clamp

15

207-03-75511

Guard

16

01010-81225

Bolt

17

01643-31232

Washer

18

207-03-75330

Nipple

19

09483-10309

Hose

20

11Y-09-11140

Clip

21

207-03-76430

Hose

22

14X-01-35570

Clamp

23

07299-00080

Clamp, Hose

24

07289-00070

Clamp

25

07281-00359

Clamp, Hose

26

11Y-09-11140

Clip

27

134-03-61410

Band

28

207-46-77340

Seal

29

419-03-21320

Tank, Reservoir

30

421-03-22170

Cap

31

207-03-75620

Bracket

32

205-03-71440

Sheet

33

207-03-75630

Band

34

01643-30823

Washer

35

01580-10806

Nut

36

208-03-58310

Hose

37

206-03-43340

Clip

38

01010-81230

Bolt

39

01643-31232

Washer

40

206-03-43340

Clip

Выбрано товаров: 40