Запчасти Komatsu PC300LC COVER ЧАСТИ КОРПУСА

Схема запчастей Komatsu PC300LC - COVER ЧАСТИ КОРПУСА
FIT
1:1
100%

Артикул

Название

Примечание

Количество

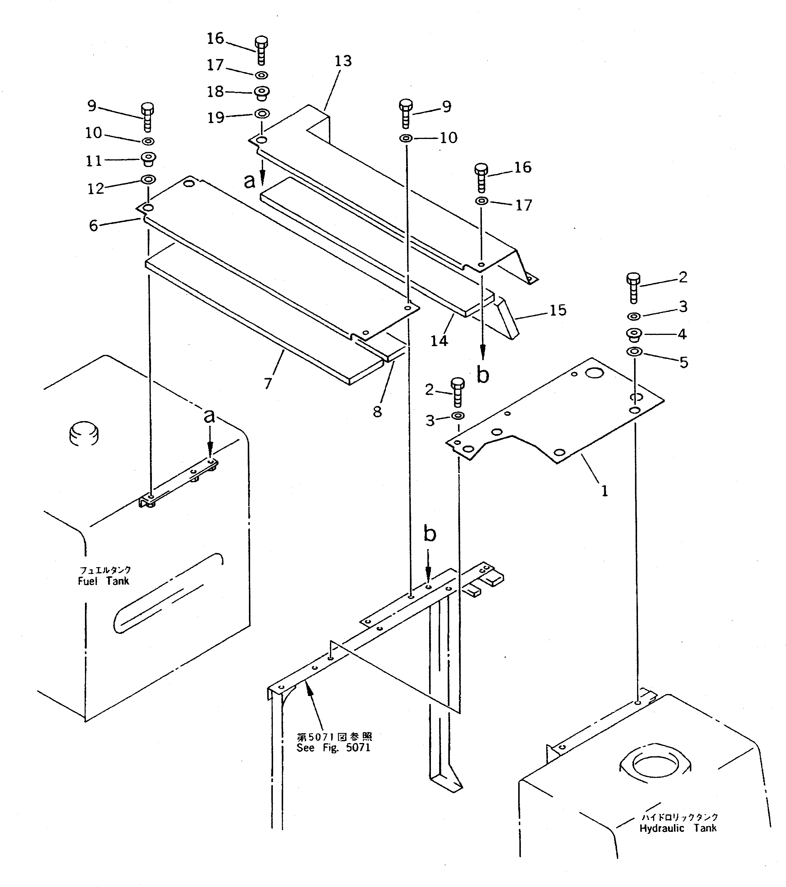
1

207-54-51230

COVER

2

01010-51230

BOLT

3

01643-31232

WASHER

4

20Y-54-12822

COLLAR

5

20Y-54-12990

PLATE

6

207-54-51211

COVER

7

207-54-51880

SHEET

8

207-54-51890

SHEET

9

01010-51230

BOLT

10

01643-31232

WASHER

11

20Y-54-12822

COLLAR

12

20Y-54-12990

PLATE

13

208-54-51760

COVER

14

207-54-51970

SHEET

15

207-54-51980

SHEET

16

01010-51230

BOLT

17

01643-31232

WASHER

18

20Y-54-12822

COLLAR

19

20Y-54-12990

PLATE

Выбрано товаров: 19