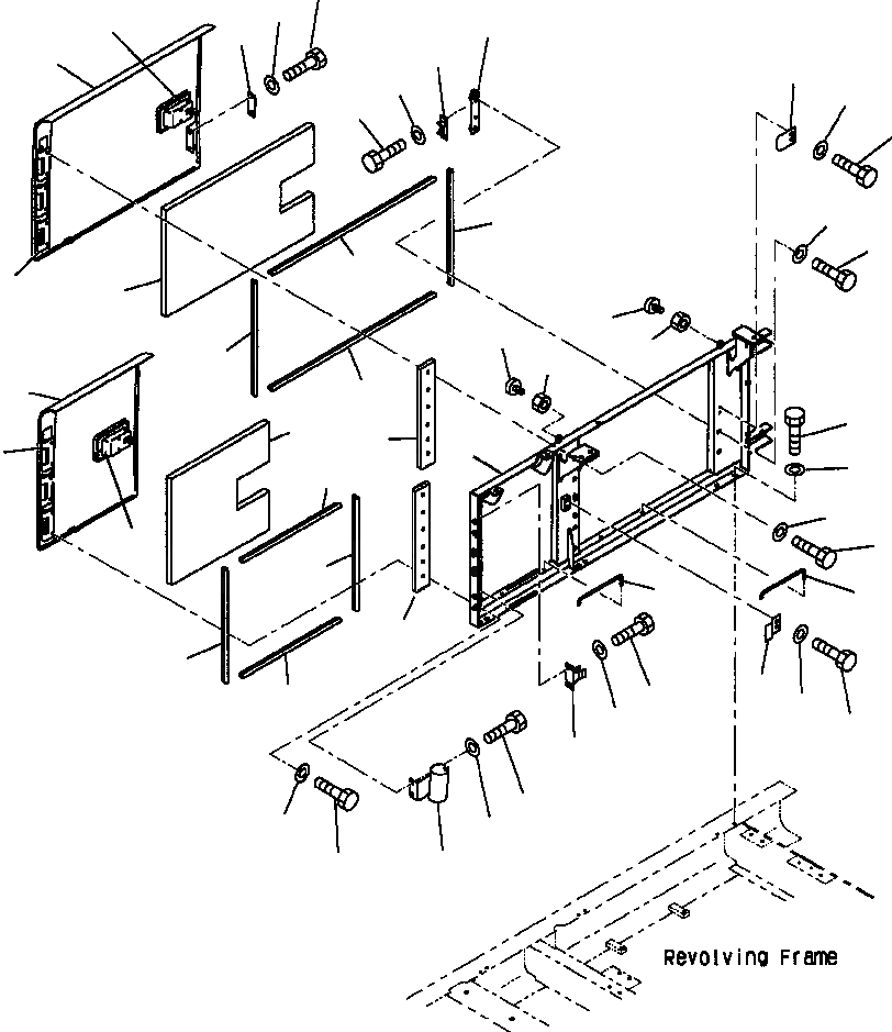
Запчасти Komatsu PC300LL-6 FIG. M-A ПРАВ. ДВЕРЬ - КАБИНА ЧАСТИ КОРПУСА

Схема запчастей Komatsu PC300LL-6 - FIG. M-A ПРАВ. ДВЕРЬ - КАБИНА ЧАСТИ КОРПУСА
9
8
6
11
7
14
4
17
16
19
15
18
13
22
12
21
5
44
23
31
24
22
1
21
42
45
41
10
2
30
43
40
3
39
29
28
20
41
29
25
30
37
27
38
26
36
34
40
35
39
33
32
FIT
1:1
100%

Артикул

Название

Примечание

Количество

1

207-54-A1730

COVER

2

203-54-62180

HINGE

3

198-54-41982

LOCK ASSEMBLY

4

20Y-54-A1820

COVER

5

203-54-62180

HINGE

6

198-54-41982

LOCK ASSEMBLY

7

205-54-53550

DOVE TAIL

8

01010-80612

BOLT

9

01643-30623

WASHER

10

207-54-A1710

FRAME

11

20Y-54-A1750

BRACKET

12

01010-81230

BOLT

13

01643-31232

WASHER

14

205-54-51970

DOVE TAIL

15

01010-80616

BOLT

16

01643-30623

WASHER

17

20Y-54-A1740

PLATE

18

01010-81230

BOLT

19

01643-31232

WASHER

20

20Y-54-29232

BAR

21

20Y-54-29251

SEAL

22

20Y-54-29261

SEAL

23

20Y-54-11611

STOPPER

24

01580-11008

NUT

25

207-54-A1720

PLATE

26

01010-81225

BOLT

27

01643-51232

WASHER

28

20Y-54-29232

BAR

29

20Y-54-29261

SEAL

30

207-54-61260

SEAL

31

20Y-54-11611

STOPPER

32

01580-11008

NUT

33

20Y-54-27341

BRACKET

34

01010-81230

BOLT

35

01643-31232

WASHER

36

20Y-54-12920

CLAMP

37

01010-81225

BOLT

38

01643-31232

WASHER

39

01010-81235

BOLT

40

01643-31232

WASHER

41

20Y-54-A1770

PLATE

42

01010-81230

BOLT

43

01643-31232

WASHER

44

20Y-54-28261

SHEET

45

207-54-61250

SHEET

Выбрано товаров: 45