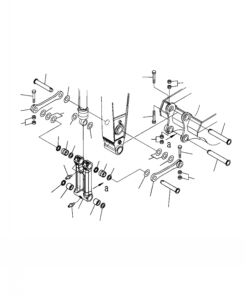
Запчасти Komatsu PC300LL-7E0 T-A РУКОЯТЬ СОЕДИНЕНИЕ КОВША РАБОЧЕЕ ОБОРУДОВАНИЕ

Схема запчастей Komatsu PC300LL-7E0 - T-A РУКОЯТЬ СОЕДИНЕНИЕ КОВША РАБОЧЕЕ ОБОРУДОВАНИЕ
8
9
10
11
9
11
12
6
9
7
10
11
5
3
10
5
11
9
5
3
12
4
5
11
7
10
11
5
6
2
8
1
2
4
5
FIT
1:1
100%

Артикул

Название

Примечание

Количество

|$0

207-70-00480

LINK ASSEMBLY

1

207-70-73110

LINK

2

207-70-33160

BUSHING

3

207-70-33160

BUSHING

4

07020-00000

FITTING

5

207-70-72120

SEAL

6

207-70-33120

LINK

7

207-70-73210

PIN

8

207-70-33141

PIN

9

208-70-73160

BOLT

10

01580-12419

NUT

11

207-70-24190

SPACER, 0.8 MM

12

207-70-24210

SPACER, 1.5 MM

Выбрано товаров: 13