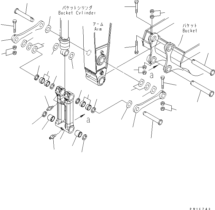
Запчасти Komatsu PC300LL-7L СОЕДИНЕНИЕ КОВША РАБОЧЕЕ ОБОРУДОВАНИЕ

Схема запчастей Komatsu PC300LL-7L - СОЕДИНЕНИЕ КОВША РАБОЧЕЕ ОБОРУДОВАНИЕ
1
2
2
3
3
4
4
5
5
5
5
5
5
6
6
7
7
8
8
9
9
9
9
10
10
10
10
11
11
11
11
11
11
12
12
FIT
1:1
100%

Артикул

Название

Примечание

Количество

|$2

207-70-00470

LINK ASS'Y

1

LINK

2

207-70-73250

BUSHING

3

207-70-73240

BUSHING

4

07020-00000

FITTING

5

207-70-72120

SEAL

6

207-70-33120

LINK

7

207-70-73210

PIN

8

207-70-33140

PIN

9

207-70-13340

BOLT

10

01580-12419

NUT

11

207-70-73260

SPACER¤ 1.0MM

12

207-70-73270

SPACER¤ 2.0MM

Выбрано товаров: 13