Запчасти Komatsu PC308USLC-3 ПЕРЕДН. КРЫШКА(COVER) (/)(№-) ЧАСТИ КОРПУСА

Схема запчастей Komatsu PC308USLC-3 - ПЕРЕДН. КРЫШКА(COVER) (/)(№-) ЧАСТИ КОРПУСА
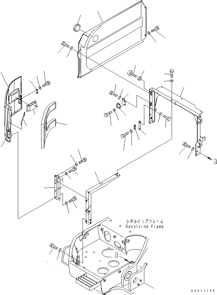
1
2
3
4
5
6
7
8
9
10
11
12
13
14
15
16
17
18
19
20
21
22
23
24
25
26
27
28
29
30
31
32
33
34
35
36
37
38
39
40
40
41
41
FIT
1:1
100%

Артикул

Название

Примечание

Количество

1

22U-54-85192

COVER

|1

22U-54-85191

COVER

2

01010-81225

BOLT

3

01643-31232

WASHER

4

01010-D1220

BOLT

5

01643-71232

WASHER

6

22U-54-24440

CAP

|7

22U-54-24470

COVER

7

COVER

8

22U-54-24480

LOCK

9

22U-54-24450

HINGE (WELDED)

10

22U-54-24271

SHEET

11

22U-54-24180

BAR

12

205-54-53550

DOVE TAIL

13

01010-80612

BOLT

14

01643-30623

WASHER

15

01010-81225

BOLT

16

01643-31232

WASHER

17

01010-81240

BOLT

18

01643-31232

WASHER

19

22U-54-85121

FRAME

20

22U-54-24361

BRACKET

21

01010-81230

BOLT

22

01643-31232

WASHER

23

22U-54-24411

BRACKET

24

01010-81230

BOLT

25

01643-31232

WASHER

26

20Y-54-11611

STOPPER

27

01580-11008

NUT

28

20Y-54-28170

BRACKET

29

01010-81230

BOLT

30

01643-31232

WASHER

31

205-54-51970

DOVE TAIL

32

01010-80616

BOLT

33

01643-30623

WASHER

34

01010-81230

BOLT

35

01643-31232

WASHER

36

22U-54-24191

FRAME

37

22U-54-24420

PLATE

38

01010-81225

BOLT

39

01643-31232

WASHER

40

01010-81230

BOLT

41

01643-31232

WASHER

Выбрано товаров: 43