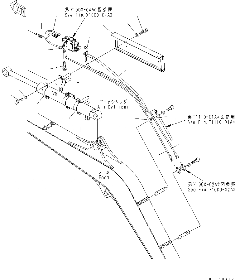
Запчасти Komatsu PC30MR-2-C РУКОЯТЬ CRANE (ЦИЛИНДР РУКОЯТИЛИНИЯ ЗАКРЫВАЮЩЕГО КЛАПАНА) СПЕЦ. ОПЦИИ

Схема запчастей Komatsu PC30MR-2-C - РУКОЯТЬ CRANE (ЦИЛИНДР РУКОЯТИЛИНИЯ ЗАКРЫВАЮЩЕГО КЛАПАНА) СПЕЦ. ОПЦИИ
1
1
2
2
3
4
5
6
7
7
8
9
10
11
12
12
13
14
FIT
1:1
100%

Артикул

Название

Примечание

Количество

1

22L-62-25211

HOSE

2

22L-62-25220

HOSE

3

22L-62-25390

HOSE

4

22L-62-25190

TUBE

5

04434-51010

CLIP

6

01435-01020

BOLT

7

04434-51008

CLIP

8

22L-70-22241

COVER

9

01010-80816

BOLT

10

01643-30823

WASHER

11

22L-70-22250

BRACKET

12

22L-70-22350

BRACKET

13

01010-80825

BOLT

14

01643-30823

WASHER

Выбрано товаров: 14