Запчасти Komatsu PC30MRX-1 КАБИНА (/) (СДВИГ. ВВЕРХ) КАБИНА ОПЕРАТОРА И СИСТЕМА УПРАВЛЕНИЯ

Схема запчастей Komatsu PC30MRX-1 - КАБИНА (/) (СДВИГ. ВВЕРХ) КАБИНА ОПЕРАТОРА И СИСТЕМА УПРАВЛЕНИЯ
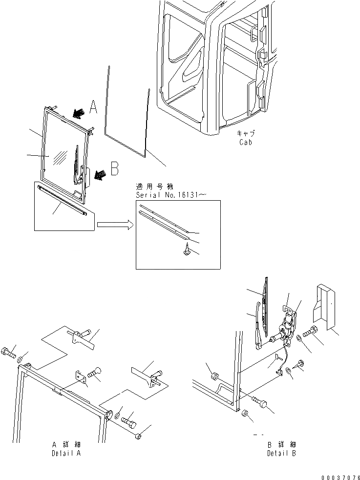
1
2
3
4
4
5
5
6
7
8
9
10
10
11
12
13
14
15
16
17
18
19
20
21
22
23
24
25
26
FIT
1:1
100%

Артикул

Название

Примечание

Количество

|$3

22L-54-00033

CAB ASS'Y

|$4

22L-54-00032

CAB ASS'Y

1

22F-54-14510

FRAME

2

22M-54-14540

LATCH ASS'Y,L.H.

3

22M-54-14550

LATCH ASS'Y,R.H.

4

20Y-54-14750

BOLT

5

01643-70823

WASHER

6

20Y-54-14310

STRIKER

7

20Y-54-14280

SCREW

8

20Y-54-14290

STOPPER

9

20T-54-74550

NUT

10

22F-54-14631

SEAL

10

20U-54-44660

SEAL

11

22F-54-14B30

PLATE

12

01370-00416

SCREW

13

21W-54-14690

CLIP

14

22F-54-14580

GLASS,FRONT

14

20U-54-44580

GLASS,FRONT

15

20U-54-24541

DAM

16

20U-54-24822

WIPER ASS'Y

17

01010-81016

BOLT

18

01643-71032

WASHER

19

22U-54-14381

COVER

20

08034-20536

BAND

21

01370-00412

SCREW

22

01641-20405

WASHER

23

20U-54-24840

ARM,WIPER

24

20U-54-24850

BLADE,WIPER

25

20T-54-74220

ROLLER, 18.0MM

26

20T-54-74230

ROLLER, 26.0MM

Выбрано товаров: 30