Запчасти Komatsu PC310LC-5 РАМА ЧАСТИ КОРПУСА

Схема запчастей Komatsu PC310LC-5 - РАМА ЧАСТИ КОРПУСА
FIT
1:1
100%

Артикул

Название

Примечание

Количество

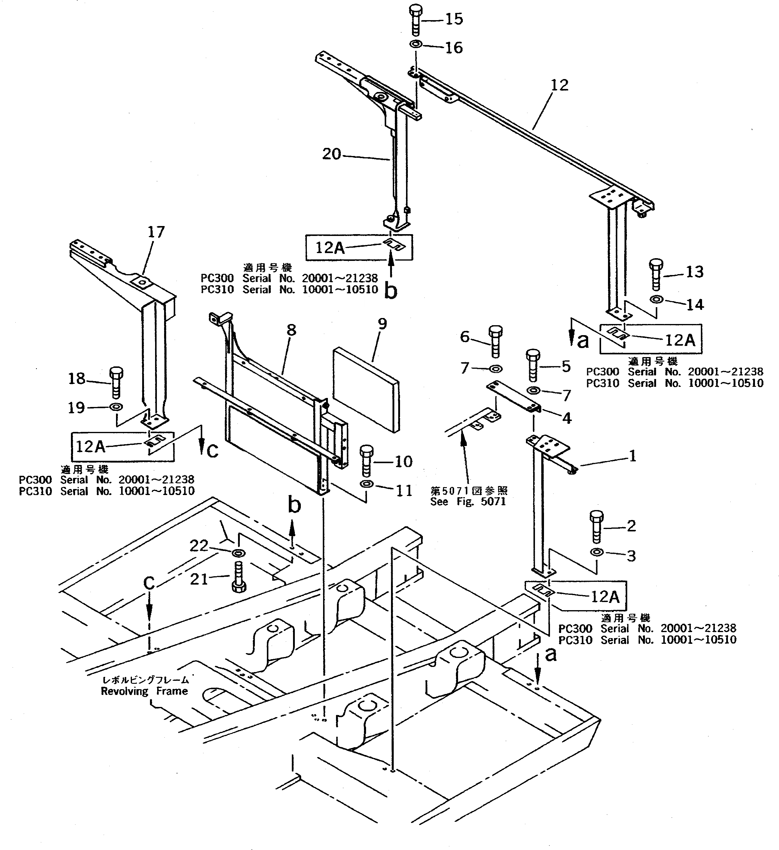
1

207-54-51152

FRAME

2

01010-51240

BOLT

3

01643-31232

WASHER

4

207-54-51911

FRAME

5

01010-51235

BOLT

6

01010-51230

BOLT

7

01643-31232

WASHER

8

207-54-51710

FRAME

9

207-54-51530

SHEET

10

01010-51240

BOLT

11

01643-31232

WASHER

12

207-54-51162

FRAME

12A

207-54-52560

PLATE

13

01010-51240

BOLT

14

01643-31232

WASHER

15

01010-51230

BOLT

16

01643-31232

WASHER

17

207-54-51770

FRAME

18

01010-51230

BOLT

19

01643-31232

WASHER

20

207-54-51781

FRAME

21

01010-51240

BOLT

22

01643-31232

WASHER

Выбрано товаров: 23