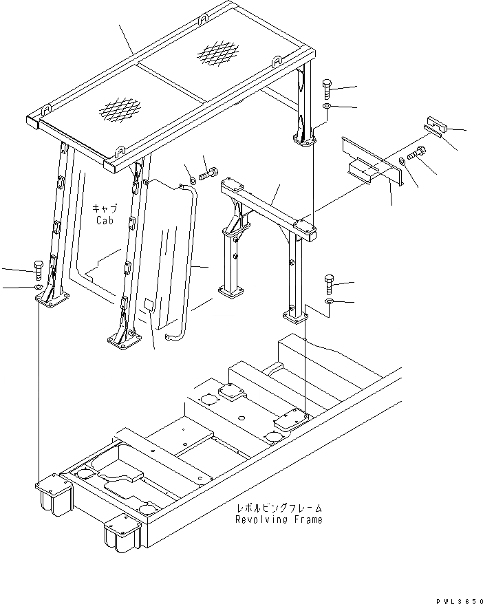
Запчасти Komatsu PC340LC-6K F.O.P.S. КАБИНА ОПЕРАТОРА И СИСТЕМА УПРАВЛЕНИЯ

Схема запчастей Komatsu PC340LC-6K - F.O.P.S. КАБИНА ОПЕРАТОРА И СИСТЕМА УПРАВЛЕНИЯ
1
2
3
4
5
6
7
8
9
10
11
12
13
14
15
16
17
FIT
1:1
100%

Артикул

Название

Примечание

Количество

1

208-956-K122

GUARD

2

01010-61640

BOLT

3

01643-31645

WASHER

4

01010-82050

BOLT

5

01643-32060

WASHER

6

20Y-54-K7260

GRIP

|6

20Y-54-11770

GRIP

7

01010-61230

BOLT

8

01643-31232

WASHER

9

207-956-K220

BRACKET

10

01010-62050

BOLT

11

01643-32060

WASHER

12

207-956-K180

COVER ASS'Y

13

207-956-6850

SHEET

14

207-54-68360

SHEET

15

01010-81225

BOLT

16

01643-31232

WASHER

17

20Y-956-K261

PLATE¤ WARNING

Выбрано товаров: 18