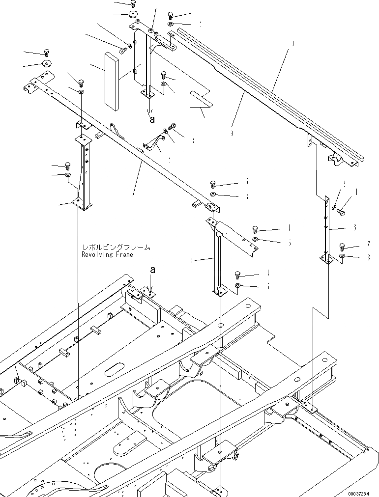
Запчасти Komatsu PC340LC-7K-E0 РАМА (КАБИНА) ЧАСТИ КОРПУСА

Схема запчастей Komatsu PC340LC-7K-E0 - РАМА (КАБИНА) ЧАСТИ КОРПУСА
1
2
3
4
5
6
7
7
8
8
9
10
11
12
13
14
15
15
16
16
17
18
19
20
21
21
22
22
23
24
24
25
25
26
27
28
FIT
1:1
100%

Артикул

Название

Примечание

Количество

1

207-54-76450

FRAME

2

01010-81240

BOLT

3

01643-31232

WASHER

4

207-54-76430

FRAME

5

207-54-77690

SHEET

6

207-54-77710

SHEET

7

01010-81230

BOLT

8

01643-31232

WASHER

9

01010-81230

BOLT

10

175-54-34170

WASHER

11

207-54-76420

FRAME

12

207-979-7560

BRACKET

13

01010-81230

BOLT

14

01643-31232

WASHER

15

01010-81230

BOLT

16

01643-31232

WASHER

17

01010-81230

BOLT

18

175-54-34170

WASHER

19

207-54-76460

FRAME

20

207-54-71721

SHEET

21

01010-81230

BOLT

22

01643-31232

WASHER

23

207-54-76410

FRAME

24

01010-81230

BOLT

25

01643-31232

WASHER

26

207-54-76480

FRAME

27

01010-81230

BOLT

28

01643-31232

WASHER

Выбрано товаров: 28