Запчасти Komatsu PC340NLC-7K-E0 ПЕРЕГОРОДКА. (КАБИНА) (НАСОС И РАДИАТОР) ЧАСТИ КОРПУСА

Схема запчастей Komatsu PC340NLC-7K-E0 - ПЕРЕГОРОДКА. (КАБИНА) (НАСОС И РАДИАТОР) ЧАСТИ КОРПУСА
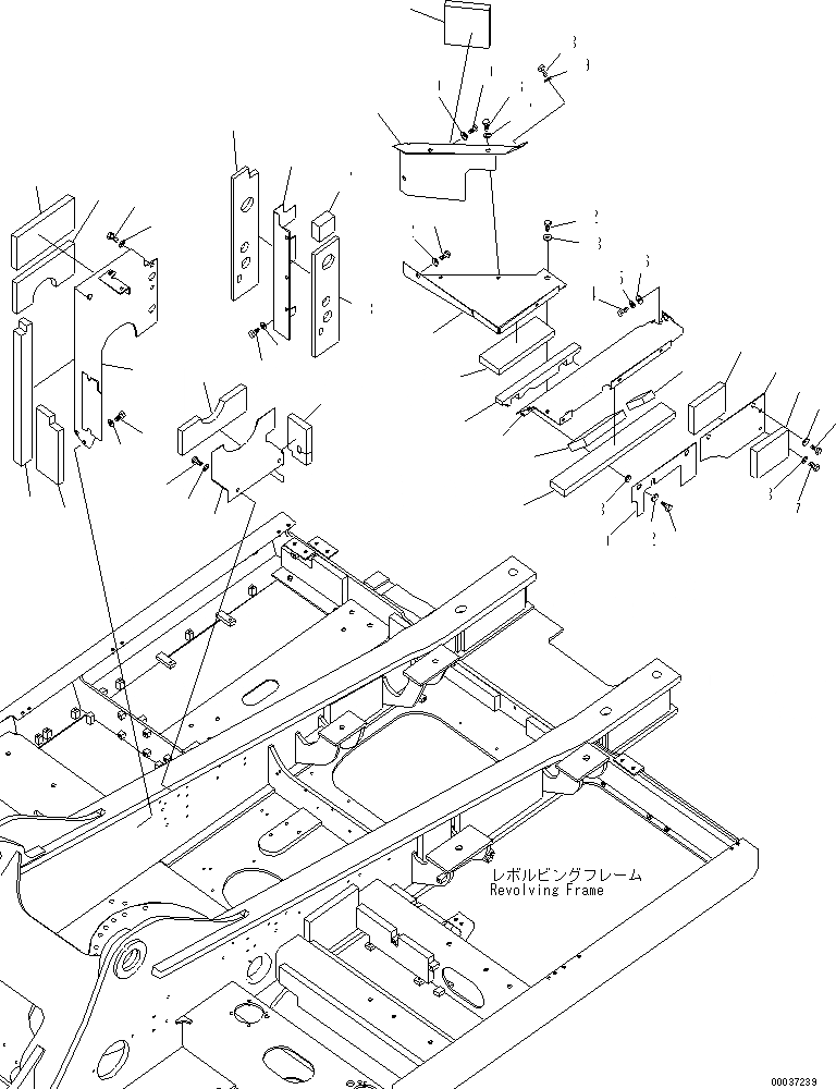
1
2
3
4
5
6
7
7
8
9
10
11
12
13
14
15
16
17
18
19
20
21
22
23
24
25
26
27
28
29
30
31
32
33
34
35
36
37
38
38
39
39
40
41
42
43
44
45
46
47
48
49
50
FIT
1:1
100%

Артикул

Название

Примечание

Количество

1

207-54-76840

COVER

2

207-54-76860

SHEET

3

207-54-77750

SHEET

4

207-54-77770

SHEET

5

207-54-77980

SHEET

6

207-54-76950

COVER

7

207-54-72990

SHEET

8

01010-81230

BOLT

9

175-54-34170

WASHER

10

207-54-76850

COVER

11

207-54-77780

SHEET

12

01010-81230

BOLT

13

175-54-34170

WASHER

14

207-54-72552

COVER

15

207-54-72871

SHEET

16

01010-81230

BOLT

17

01643-31232

WASHER

18

01010-81230

BOLT

19

175-54-34170

WASHER

20

207-54-76870

SHEET

21

01010-81230

BOLT

22

175-54-34170

WASHER

23

01643-51232

WASHER

24

01010-81230

BOLT

25

01643-31232

WASHER

26

205-54-76410

COLLAR

27

01010-81230

BOLT

28

01643-31232

WASHER

29

01010-81220

BOLT

30

175-54-34170

WASHER

31

01010-81230

BOLT

32

175-54-34170

WASHER

33

207-54-76611

COVER

34

207-54-76630

SHEET

35

208-54-73351

SHEET

36

207-54-76640

SHEET

37

207-54-76651

SHEET

38

01010-81230

BOLT

39

01643-31232

WASHER

40

207-54-76620

COVER

41

207-54-76690

SHEET

42

207-54-76660

SHEET

43

01010-81230

BOLT

44

01643-31232

WASHER

45

207-54-76551

COVER

46

207-54-76541

SHEET

47

207-54-76560

SHEET

48

207-54-76810

SHEET

49

01010-81230

BOLT

50

01643-31232

WASHER

Выбрано товаров: 50