Запчасти Komatsu PC340NLC-7K-E0 НИЖН. КРЫШКА (ОСНОВНАЯ РАМА) (ПРАВ. COVER) ЧАСТИ КОРПУСА

Схема запчастей Komatsu PC340NLC-7K-E0 - НИЖН. КРЫШКА (ОСНОВНАЯ РАМА) (ПРАВ. COVER) ЧАСТИ КОРПУСА
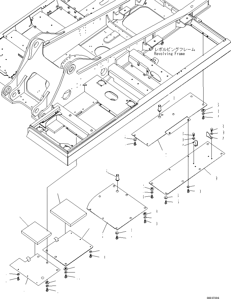
1
2
3
4
5
6
7
8
9
10
11
12
13
14
15
16
17
18
19
20
21
22
23
24
25
26
27
28
29
30
31
32
33
34
35
36
37
37
38
38
39
39
FIT
1:1
100%

Артикул

Название

Примечание

Количество

1

208-54-72410

COVER

2

208-54-73520

SHEET

3

01010-81230

BOLT

4

01643-31232

WASHER

5

208-54-57180

COLLAR

6

01010-81230

BOLT

7

01643-31232

WASHER

8

208-54-72420

COVER

9

208-54-73490

SHEET

10

01010-81230

BOLT

11

01643-31232

WASHER

12

208-54-57180

COLLAR

13

01010-81230

BOLT

14

01643-31232

WASHER

15

207-54-77211

COVER

16

22U-54-24760

GROMMET

17

01010-81230

BOLT

18

175-54-34170

WASHER

19

208-54-57180

COLLAR

20

01010-81230

BOLT

21

01643-31232

WASHER

22

207-54-77230

COVER

23

22U-54-24760

GROMMET

24

01010-81230

BOLT

25

175-54-34170

WASHER

26

208-54-57180

COLLAR

27

01010-81230

BOLT

28

01643-31232

WASHER

29

207-54-77220

COVER

30

01010-81230

BOLT

31

01643-31232

WASHER

32

208-54-57180

COLLAR

33

01010-81230

BOLT

34

01643-31232

WASHER

35

01010-81230

BOLT

36

175-54-34170

WASHER

37

20Y-54-61670

BRACKET

38

01010-81230

BOLT

39

01643-31232

WASHER

Выбрано товаров: 39