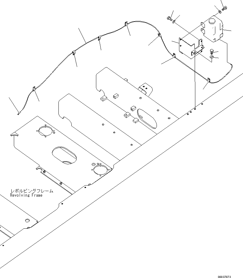
Запчасти Komatsu PC350-7E0 ОМЫВАТЕЛЬ СТЕКЛА КАБИНА ОПЕРАТОРА И СИСТЕМА УПРАВЛЕНИЯ

Схема запчастей Komatsu PC350-7E0 - ОМЫВАТЕЛЬ СТЕКЛА КАБИНА ОПЕРАТОРА И СИСТЕМА УПРАВЛЕНИЯ
1
2
3
3
4
4
5
6
7
8
8
8
8
8
8
8
9
FIT
1:1
100%

Артикул

Название

Примечание

Количество

1

21T-06-11350

WASHER TANK ASS'Y

2

207-06-71132

BRACKET

3

01010-80616

BOLT

4

01643-30623

WASHER

5

01010-81225

BOLT

6

01643-31232

WASHER

7

195-979-8580

HOSE

8

21T-38-12270

CLIP

9

207-06-61490

VALVE

Выбрано товаров: 9