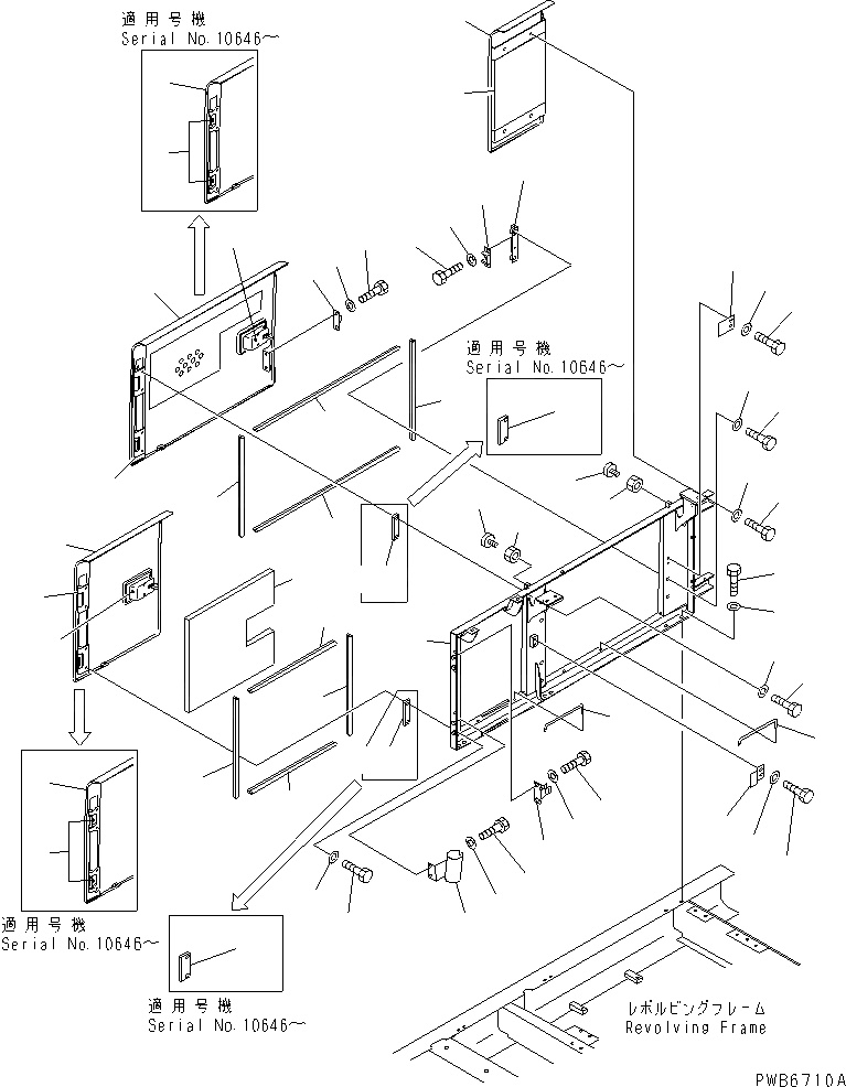
Запчасти Komatsu PC350LC-6 ПРАВ. ДВЕРЬ (КАБИНА) (С ОТВЕРСТИЯМИ)(№-999) ЧАСТИ КОРПУСА

Схема запчастей Komatsu PC350LC-6 - ПРАВ. ДВЕРЬ (КАБИНА) (С ОТВЕРСТИЯМИ)(№-999) ЧАСТИ КОРПУСА
1
1
2
2
3
4
4
5
5
6
7
8
9
10
11
12
13
14
15
16
17
18
19
20
21
21
22
22
23
24
25
26
27
28
29
29
30
30
31
32
33
34
35
36
37
38
39
39
40
40
41
41
41
41
42
43
44
45
46
47
48
FIT
1:1
100%

Артикул

Название

Примечание

Количество

1

207-54-61211

COVER

|1

207-54-61210

COVER

2

203-54-62180

HINGE (WELDED)

|2

20Y-54-28161

HINGE (WELDED)

3

198-54-41982

LOCK ASS'Y (WELDED)

4

208-54-68461

COVER

|4

208-54-68460

COVER

5

203-54-62180

HINGE (WELDED)

|5

20Y-54-28161

HINGE (WELDED)

6

198-54-41982

LOCK ASS'Y (WELDED)

7

205-54-53550

DOVE TAIL

8

01010-80612

BOLT

9

01643-30623

WASHER

10

207-54-61231

FRAME,R.H.

11

20Y-54-28170

BRACKET

12

01010-81230

BOLT

13

01643-31232

WASHER

14

205-54-51970

DOVE TAIL

15

01010-80616

BOLT

16

01643-30623

WASHER

17

20Y-54-28182

PLATE

18

01010-81230

BOLT

19

01643-31232

WASHER

20

20Y-54-29232

BAR

21

20Y-54-29251

SEAL

22

20Y-54-29261

SEAL

23

203-54-56710

STOPPER

24

01580-11008

NUT

25

207-54-61141

PLATE

26

01010-81225

BOLT

27

01643-51232

WASHER

28

20Y-54-29232

BAR

29

20Y-54-29261

SEAL

30

207-54-61260

SEAL

31

203-54-56710

STOPPER

32

01580-11008

NUT

33

20Y-54-27341

BRACKET

34

01010-81230

BOLT

35

01643-31232

WASHER

36

20Y-54-12920

CLAMP

37

01010-81025

BOLT

38

01643-31032

WASHER

39

01010-81235

BOLT

40

01643-31232

WASHER

41

20Y-54-28291

PLATE

|41

20Y-54-28290

PLATE

42

207-54-61221

COVER,R.H.

43

207-54-61280

SHEET

44

01010-81230

BOLT

45

01643-31232

WASHER

46

01010-81230

BOLT

47

01643-31232

WASHER

48

207-54-61250

SHEET

Выбрано товаров: 53