Запчасти Komatsu PC350LC-7 ПЕРЕГОРОДКА. (КАБИНА) (ОТСЕК ДВИГАТЕЛЯ ПЕРЕДН.)(№-) ЧАСТИ КОРПУСА

Схема запчастей Komatsu PC350LC-7 - ПЕРЕГОРОДКА. (КАБИНА) (ОТСЕК ДВИГАТЕЛЯ ПЕРЕДН.)(№-) ЧАСТИ КОРПУСА
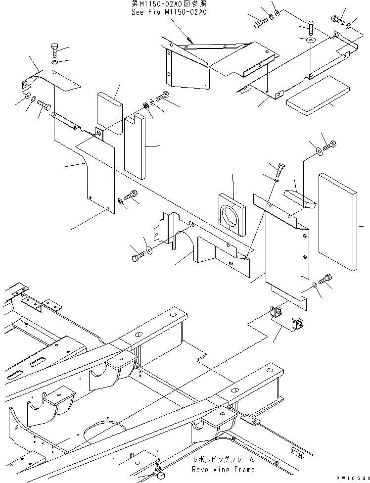
1
2
3
4
5
6
7
8
9
10
11
12
13
14
15
16
17
18
19
20
21
22
23
24
25
26
27
28
29
30
31
32
33
34
35
36
37
FIT
1:1
100%

Артикул

Название

Примечание

Количество

1

207-54-72511

COVER

2

207-54-72861

SHEET

3

207-54-72871

SHEET

4

01010-81230

BOLT

5

01643-31232

WASHER

6

207-54-72561

COVER

7

01010-81230

BOLT

8

01643-31232

WASHER

9

01010-81230

BOLT

10

01643-31232

WASHER

11

203-54-62670

COLLAR

12

207-54-72651

CATCH

13

01010-81230

BOLT

14

01643-31232

WASHER

15

207-54-72571

COVER

16

207-54-72851

SHEET

17

207-54-72960

SHEET

18

01010-81230

BOLT

19

01643-31232

WASHER

20

01010-81230

BOLT

21

175-54-34170

WASHER

22

207-54-72581

COVER

23

207-54-72890

SHEET

24

01010-81230

BOLT

25

01643-31232

WASHER

26

208-54-57180

COLLAR

27

01010-81230

BOLT

28

175-54-34170

WASHER

29

207-54-72612

COVER

30

207-54-72881

SHEET

31

01010-81230

BOLT

32

01643-31232

WASHER

33

01010-81230

BOLT

34

175-54-34170

WASHER

35

01010-81230

BOLT

36

01643-31232

WASHER

37

205-54-76410

COLLAR

Выбрано товаров: 37