Запчасти Komatsu PC350LC-8 АККУМУЛЯТОР (ЖИДКОСТН. ТИПА)(№-) ЭЛЕКТРИКА

Схема запчастей Komatsu PC350LC-8 - АККУМУЛЯТОР (ЖИДКОСТН. ТИПА)(№-) ЭЛЕКТРИКА
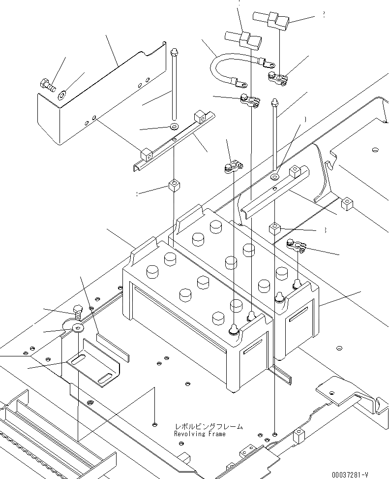
1
1
2
2
3
3
4
5
6
7
8
9
9
10
10
11
12
12
13
13
14
15
16
17
FIT
1:1
100%

Артикул

Название

Примечание

Количество

1

08000-3222Y

BATTERY, WET(170F51)

2

08000-00000

TERMINAL, (+)

3

08000-00001

TERMINAL, (-)

4

207-06-75310

CLAMP

5

207-06-75321

COVER

6

01010-81225

BOLT

7

01643-31232

WASHER

8

207-06-51470

CLAMP

9

207-06-11370

BOLT

10

01643-31232

WASHER

11

08028-64035

CABLE

12

08038-42511

CAP

13

207-06-51461

BLOCK

14

207-06-61461

BRACKET

15

207-06-51330

SHEET

16

01010-81225

BOLT

17

175-54-34170

WASHER

Выбрано товаров: 17