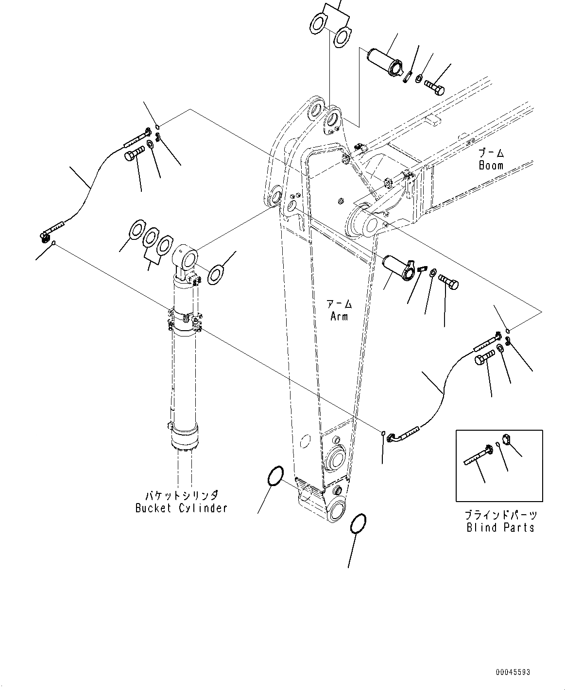
Запчасти Komatsu PC350LC-8 РУКОЯТЬ, ПАТРУБКИ ЦИЛИНДРА КОВША И ПАЛЕЦ (№-7) РУКОЯТЬ, MM, УСИЛЕНН.

Схема запчастей Komatsu PC350LC-8 - РУКОЯТЬ, ПАТРУБКИ ЦИЛИНДРА КОВША И ПАЛЕЦ (№-7) РУКОЯТЬ, MM, УСИЛЕНН.
18
11
10
9
14
12
13
18
10
8
7
6
15
16
13
13
16
15
14
13
12
5
4
3
2
1
13
17
12
FIT
1:1
100%

Артикул

Название

Примечание

Количество

1

208-70-61241

Pin

2

205-70-66581

Plate

3

01010-81235

Bolt

4

01643-31232

Washer

5

207-70-31340

Spacer, T=0.8mm

6

207-70-61221

Pin

7

205-70-66581

Plate

8

01010-81235

Bolt

9

01643-31232

Washer

10

207-70-24190

Spacer, T=0.8mm

11

207-70-24210

Spacer, T=1.5mm

12

207-62-74190

Hose

13

07000-13032

O-ring

14

07371-31049

Flange, Split

15

07372-21035

Bolt

16

01643-51032

Washer

17

07379-01044

Flange

18

207-70-33181

O-ring

Выбрано товаров: 18