Запчасти Komatsu PC350LC-8 КАБИНА, EOPS КАБИНА ПЕРЕДН. FIX, С AM-FM РАДИО, С МАСТЕР КЛЮЧ, ДЛЯ KOMTRAX, ПОЛ, P.P.C. КРЕПЛЕНИЕ ШЛАНГОВ (№B7-) КАБИНА, EOPS КАБИНА ПЕРЕДН. FIX, С AM-FM РАДИО, С МАСТЕР КЛЮЧ, ДЛЯ KOMTRAX

Схема запчастей Komatsu PC350LC-8 - КАБИНА, EOPS КАБИНА ПЕРЕДН. FIX, С AM-FM РАДИО, С МАСТЕР КЛЮЧ, ДЛЯ KOMTRAX, ПОЛ, P.P.C. КРЕПЛЕНИЕ ШЛАНГОВ (№B7-) КАБИНА, EOPS КАБИНА ПЕРЕДН. FIX, С AM-FM РАДИО, С МАСТЕР КЛЮЧ, ДЛЯ KOMTRAX
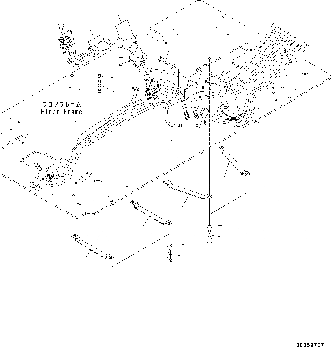
1
2
3
4
5
6
7
8
9
10
11
12
13
14
15
16
13
13
13
14
15
FIT
1:1
100%

Артикул

Название

Примечание

Количество

1

208-06-19170

Clip

2

01010-81025

Bolt

3

01643-31032

Washer

4

08034-20536

Band

5

207-53-14140

Grommet

6

08034-20536

Band

7

04434-53411

Clip

8

01010-81025

Bolt

9

01643-31032

Washer

10

08034-20536

Band

11

20Y-54-65121

Grommet

12

08034-20536

Band

13

20Y-62-27770

Clamp

14

01010-81016

Bolt

15

01643-31032

Washer

16

08034-20536

Band

Выбрано товаров: 16