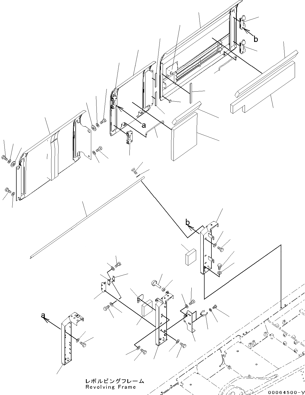
Запчасти Komatsu PC350LC-8 БОКОВ. КРЫШКА, RHS БОКОВ. КРЫШКА, RHS

Схема запчастей Komatsu PC350LC-8 - БОКОВ. КРЫШКА, RHS БОКОВ. КРЫШКА, RHS
9
12
10
11
13
14
21
23
22
17
19
18
24
26
25
20
20
15
16
8
8
5
7
6
4
29
30
30
29
27
31
33
32
36
34
35
35
38
37
39
40
40
41
41
41
42
42
42
42
41
43
44
46
45
48
47
3
3
2
2
28
1
FIT
1:1
100%

Артикул

Название

Примечание

Количество

1

207-54-78830

Cover

2

20Y-54-63390

Sheet

3

20Y-54-63414

Hinge,Welded

4

207-54-78910

Cover

5

20Y-54-71491

Lock,Welded

6

207-54-76330

Sheet

7

207-54-76360

Sheet

8

20Y-54-63414

Hinge,Welded

9

207-54-76340

Frame

10

207-54-71221

Frame

11

207-54-71241

Plate

12

207-54-71251

Frame

13

01010-81225

Bolt

14

01643-31232

Washer

15

20Y-54-11611

Stopper

16

01580-11008

Nut

17

20Y-54-28170

Bracket

18

01010-81225

Bolt

19

01643-31232

Washer

20

20Y-54-29232

Bar

21

20Y-54-61470

Plate

22

01010-81225

Bolt

23

01643-31232

Washer

24

205-54-51970

Dovetail

25

01010-80616

Bolt

26

01643-30623

Washer

27

207-54-76321

Sheet

28

207-54-78930

Sheet

29

01010-81225

Bolt

30

01643-31232

Washer

31

205-54-53550

Dovetail

32

01010-80612

Bolt

33

01643-30623

Washer

34

207-54-77560

Sheet

35

207-54-77640

Sheet

36

207-54-77880

Sheet

37

01010-81230

Bolt

38

01643-31232

Washer

39

207-54-76350

Cover

40

203-54-62670

Collar

41

01010-81230

Bolt

42

01643-31232

Washer

43

207-54-78890

Bracket

44

203-54-63230

Clamp

45

01220-40612

Screw, Philips Head

46

01641-20608

Washer

47

01010-81230

Bolt

48

01643-31232

Washer

Выбрано товаров: 48