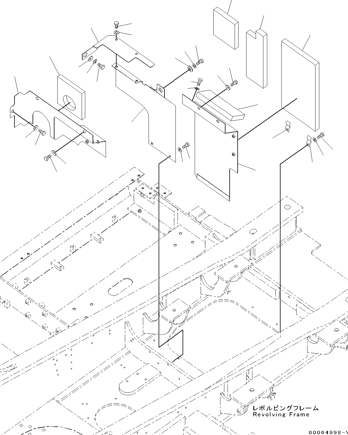
Запчасти Komatsu PC350LC-8 КАБИНА ПЕРЕГОРОДКА. (/) КАБИНА ПЕРЕГОРОДКА.

Схема запчастей Komatsu PC350LC-8 - КАБИНА ПЕРЕГОРОДКА. (/) КАБИНА ПЕРЕГОРОДКА.
25
26
26
18
25
22
24
14
13
12
12
21
20
18
19
8
7
9
11
3
2
4
6
5
16
17
15
10
19
23
1
FIT
1:1
100%

Артикул

Название

Примечание

Количество

1

207-54-72511

Cover

2

207-54-72861

Sheet

3

207-54-72871

Sheet

4

207-54-76591

Cover

5

01010-81230

Bolt

6

01643-31232

Washer

7

01010-81230

Bolt

8

01643-31232

Washer

9

01010-81230

Bolt

10

01643-31232

Washer

11

203-54-62670

Collar

12

20Y-54-27761

Catcher

13

01010-81230

Bolt

14

01643-31232

Washer

15

207-54-76512

Cover

16

207-54-72851

Sheet

17

207-54-77840

Sheet

18

01010-81230

Bolt

19

175-54-34170

Washer

20

207-54-76521

Cover

21

207-54-76570

Sheet

22

01010-81230

Bolt

23

01643-31232

Washer

24

208-54-57180

Collar

25

01010-81230

Bolt

26

175-54-34170

Washer

Выбрано товаров: 26