Запчасти Komatsu PC35MR-1 ПОКРЫТИЕ ПОЛА (ПОЛ КАБИНЫ) (НАВЕС) КАБИНА ОПЕРАТОРА И СИСТЕМА УПРАВЛЕНИЯ

Схема запчастей Komatsu PC35MR-1 - ПОКРЫТИЕ ПОЛА (ПОЛ КАБИНЫ) (НАВЕС) КАБИНА ОПЕРАТОРА И СИСТЕМА УПРАВЛЕНИЯ
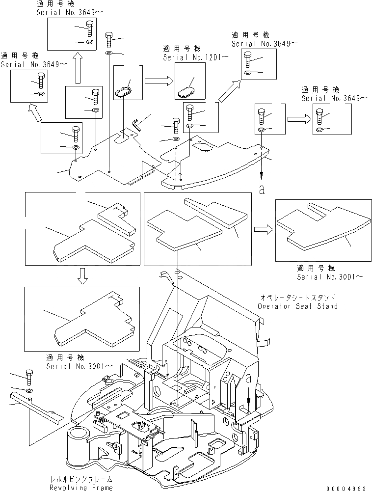
1
2
3
3
4
4
4
4A
5
6
6
6
6
6
7
8
8
9
10
11
11
12
12
12
12A
13
14
14
14
14
14
15
16
17
FIT
1:1
100%

Артикул

Название

Примечание

Количество

1

22F-54-12711

PLATE,L.H.

|1

22F-54-12710

PLATE,L.H.

2

22F-54-12720

SHEET

3

22F-54-12641

SHEET

|3

22F-54-12640

SHEET

4

01010-81020

BOLT

|4

01010-81020

BOLT

4A

01010-81025

BOLT

5

01010-81060

BOLT

6

01643-31032

WASHER

7

22F-54-12812

PLATE,R.H.

|7

22F-54-12811

PLATE,R.H.

8

22F-54-12651

SHEET

|8

22F-54-12821

SHEET

9

22F-54-12850

SEAL

10

22F-54-12650

SHEET

11

22F-54-12750

SEAL

|11

22F-54-12890

SEAL

12

01010-81020

BOLT

|12

01010-81020

BOLT

12A

01010-81025

BOLT

13

01010-81045

BOLT

14

01643-31032

WASHER

15

22F-54-12830

COVER

16

01010-81020

BOLT

17

01643-31032

WASHER

Выбрано товаров: 26