Запчасти Komatsu PC35MR-1 ОТВАЛ (УСИЛ.) (ДЛЯ ПОВОРОТН. ОТВАЛА С ИЗМ. УГЛОМ) РАБОЧЕЕ ОБОРУДОВАНИЕ

Схема запчастей Komatsu PC35MR-1 - ОТВАЛ (УСИЛ.) (ДЛЯ ПОВОРОТН. ОТВАЛА С ИЗМ. УГЛОМ) РАБОЧЕЕ ОБОРУДОВАНИЕ
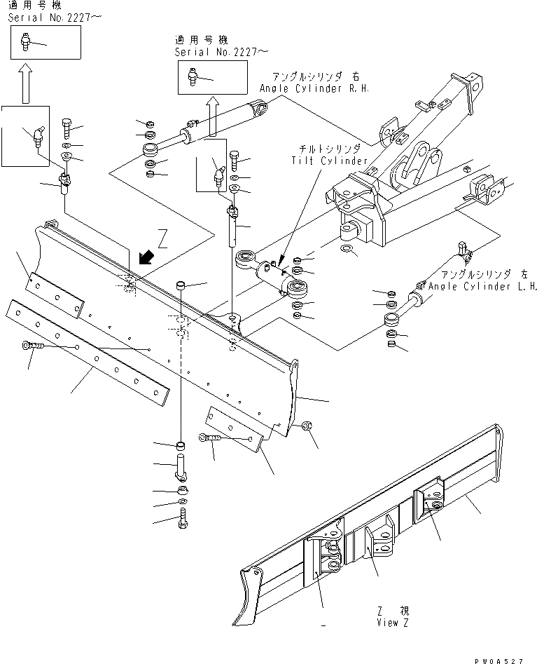
1
1
2
3
4
5
5
6
7
7
8
8
9
10
11
12
13
14
15
16
16
17
17
18
18
19
19
20
20
21
22
23
24
25
26
27
28
28
29
29
30
30
FIT
1:1
100%

Артикул

Название

Примечание

Количество

|1

22F-910-0020

BLADE ASS'Y

1

BLADE

2

22F-910-1140

BRACKET (WELDED)

3

22F-910-1580

BRACKET (WELDED)

4

22F-910-1130

BRACKET (WELDED)

5

20U-910-1190

BUSHING

6

20T-71-22220

EDGE

7

20U-910-1980

EDGE

8

02090-10840

BOLT

9

02290-10813

NUT

10

22L-910-1130

PIN

11

20S-70-31180

SPACER

12

01010-81230

BOLT

13

01643-31232

WASHER

14

20T-70-81720

SPACER¤ 1.0MM

15

22L-910-1151

PIN

16

20U-910-1360

BUSHING

17

20U-910-1370

COLLAR

18

20U-910-1280

COLLAR

19

20U-910-1290

BUSHING

20

07020-00000

FITTING

|20

07020-00675

FITTING

21

20S-70-31180

SPACER

22

01010-81230

BOLT

23

01643-31232

WASHER

24

22L-910-1171

PIN

25

20S-70-31180

SPACER

26

01010-81230

BOLT

27

01643-31232

WASHER

28

20U-910-1360

BUSHING

29

20U-910-1370

COLLAR

30

07020-00000

FITTING,GREASE

|30

07020-00675

FITTING,GREASE

Выбрано товаров: 33