Качественные детали и логистика
Оригинальные и аналоговые запчасти с доставкой по России, Казахстану и Беларуси
©2022 PartSell ООО "Система" ИНН 2463123282 ОГРН 1212400004838
Центральный офис: г. Красноярск, Академика Киренского, д.87, пом.4
Телефон: 8 (800) 777-65-74 Email: zakaz@partsell.ru
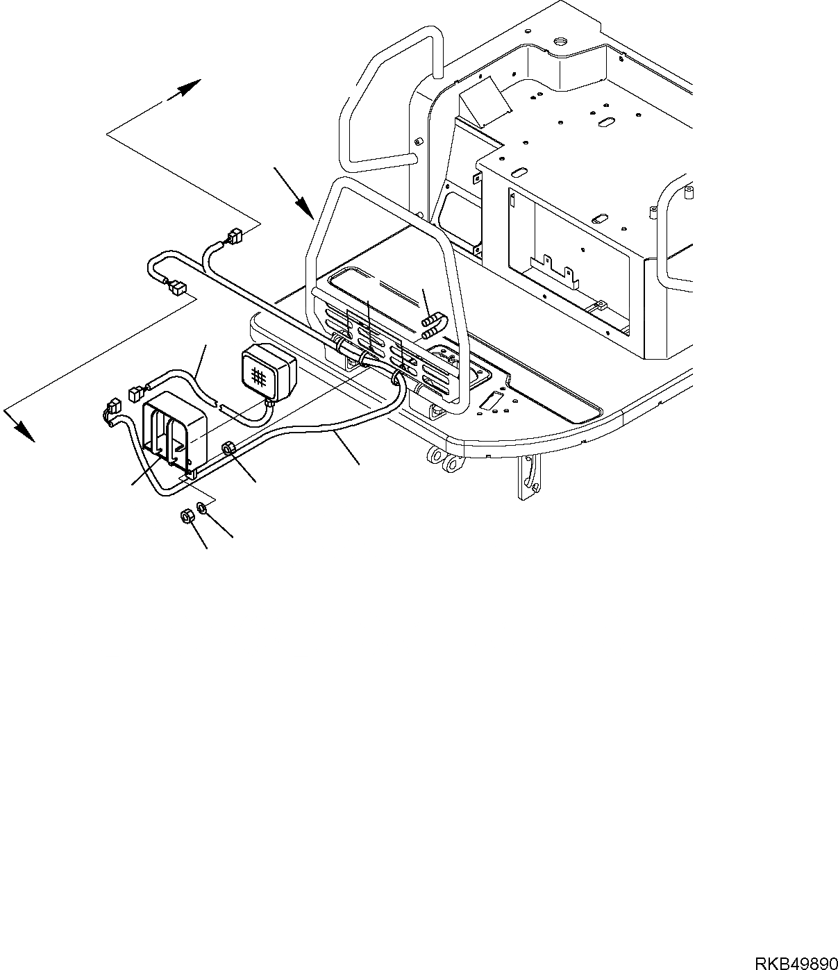
ДОПОЛН. РАБОЧ. ОСВЕЩЕНИЕ (ДЛЯ НАВЕСА)
№
Артикул
Название
Примечание
Количество
1
22L-06-R1560
BRACKET
2
22M-06-R1710
WORK LAMP, ASSY
104-06-41410
BULB
3
22L-09-R2540
CLAMP
4
08034-20536
5
37A-09-2T209
NUT
6
01643-11032
WASHER
7
22L-06-R1550
WIRING HARNESS
Выбрано товаров: 0