Запчасти Komatsu PC35MR-3 КАБИНА (УПРАВЛЕНИЕ ПОВОРОТОМ СТРЕЛЫ)(№-) КАБИНА ОПЕРАТОРА И СИСТЕМА УПРАВЛЕНИЯ

Схема запчастей Komatsu PC35MR-3 - КАБИНА (УПРАВЛЕНИЕ ПОВОРОТОМ СТРЕЛЫ)(№-) КАБИНА ОПЕРАТОРА И СИСТЕМА УПРАВЛЕНИЯ
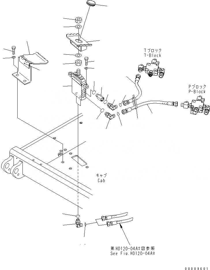
1
2
3
4
5
6
7
8
8
9
9
10
11
12
12
12
13
14
14
14
14
15
15
15
16
17
18
FIT
1:1
100%

Артикул

Название

Примечание

Количество

1

702-16-01270

PILOT VALVE,(SEE FIG.Y1670-31A0)

2

22M-43-21341

PEDAL

3

01010-81025

BOLT

4

01643-31032

WASHER

5

09415-02512

CAP

6

22M-43-21351

COVER

7

22M-43-11510

HINGE (WELDED)

8

01583-11408

NUT

9

01641-21423

WASHER

10

01010-81025

BOLT

11

01643-31032

WASHER

12

21K-62-73110

ELBOW

13

20T-910-8660

NIPPLE

14

07000-12011

O-RING

15

02896-11008

O-RING

16

22F-62-33410

HOSE

16

21U-62-34750

BAND, BLUE

16

21U-62-34770

BAND, WHITE

17

22F-62-33410

HOSE,GREEN, RED

17

21U-62-34730

BAND, GREEN

17

21U-62-34760

BAND, RED

18

08034-20519

BAND

Выбрано товаров: 22