Запчасти Komatsu PC35MR-3 КАБИНА (/8) (ПЕРЕДН. ОКНА)(№-) КАБИНА ОПЕРАТОРА И СИСТЕМА УПРАВЛЕНИЯ

Схема запчастей Komatsu PC35MR-3 - КАБИНА (/8) (ПЕРЕДН. ОКНА)(№-) КАБИНА ОПЕРАТОРА И СИСТЕМА УПРАВЛЕНИЯ
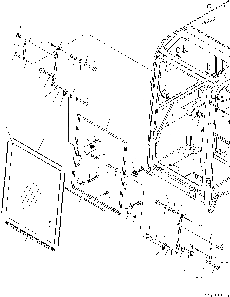
1
2
3
3
3
4
5
6
7
8
9
10
11
12
13
13
14
14
15
15
16
17
18
18
19
19
20
21
22
22
23
23
23
23
24
24
24
24
25
25
25
25
26
26
26
26
27
27
28
28
28
28
29
29
29
29
30
30
30
30
31
31
32
33
34
35
36
37
38
38
FIT
1:1
100%

Артикул

Название

Примечание

Количество

|$14

22M-54-00311

CAB ASS'Y

|$17

22M-54-24501

FRONT WINDOW ASS'Y

1

22M-54-24512

FRAME

2

22M-54-24292

GLASS

3

22M-54-25490

SEAL

4

22M-54-24670

SEAL

5

22M-54-24521

PLATE

6

01023-70610

SCREW

7

22M-54-24551

BRACKET

8

01010-D0816

BOLT

9

01643-70823

WASHER

10

22M-54-24560

BRACKET

11

01010-D0816

BOLT

12

01643-70823

WASHER

13

22M-54-24570

BRACKET

14

01010-D0820

BOLT

15

01643-70823

WASHER

16

22M-54-24531

PLATE,L.H.

17

22M-54-24541

PLATE,R.H.

18

22M-54-24582

STRIKER

19

22B-54-15580

PLATE

20

22M-54-24592

STRIKER

21

22M-54-24970

STRIKER

22

22M-54-24610

GAS SPRING

23

22M-54-24620

BUSHING

24

22M-54-24630

WASHER

25

22M-54-24640

WASHER

26

22M-54-24660

BUSHING

27

22B-54-15540

ROLLER

28

01245-00612

SCREW

29

01010-D0820

BOLT

30

01643-70823

WASHER

31

01435-40616

BOLT

32

20Y-54-11611

STOPPER

33

20T-54-74550

NUT

34

22M-54-25712

LOCK ASS'Y,R.H.

35

01240-00616

SCREW

36

22M-54-25722

LOCK ASS'Y,L.H.

37

01240-00616

SCREW

38

22M-54-26150

SEAL

Выбрано товаров: 40