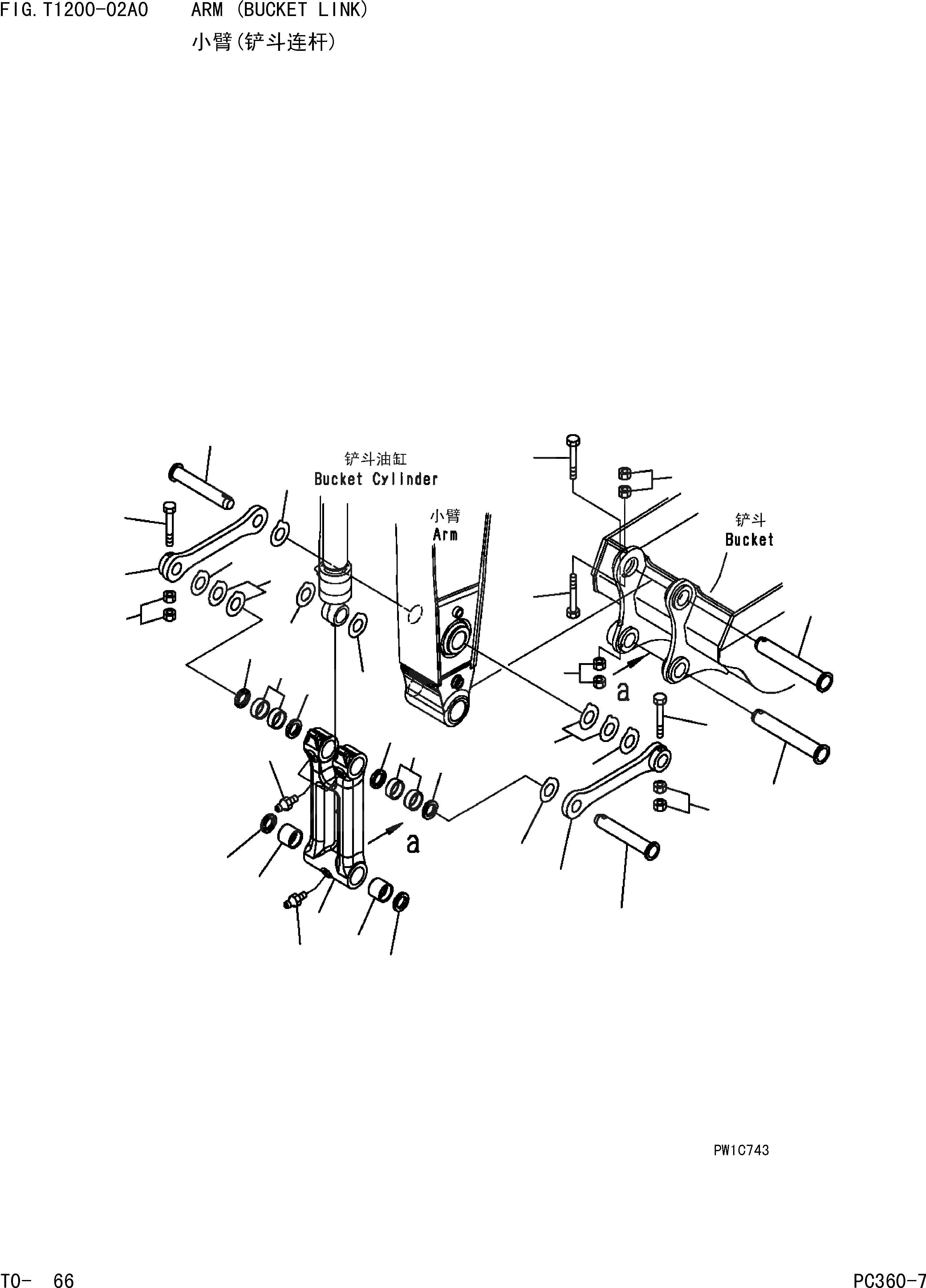
Запчасти Komatsu PC360-7 РУКОЯТЬ (СОЕДИНЕНИЕ КОВША) РАБОЧЕЕ ОБОРУДОВАНИЕ]

Схема запчастей Komatsu PC360-7 - РУКОЯТЬ (СОЕДИНЕНИЕ КОВША) РАБОЧЕЕ ОБОРУДОВАНИЕ]
8
9
6
10
11
11
12
11
5
3
5
11
4
5
2
4
1
2
5
5
3
5
11
6
8
12
11
10
7
9
7
10
9
9
10
FIT
1:1
100%

Артикул

Название

Примечание

Количество

|$0

207-70-00470

LINK ASS'Y

1

207-70-73110

LINK

2

207-70-73250

BUSHING

3

207-70-73240

BUSHING

4

07020-00000

FITTING

5

207-70-72120

SEAL

6

207-70-33120

LINK

7

207-70-73210

PIN

8

207-70-33141

PIN

9

208-70-73160

BOLT

|$10

207-70-D3340

BOLT

10

01580-12419

NUT

11

207-70-73260

SPACER,1MM

12

207-70-73270

SPACER,2MM

Выбрано товаров: 14