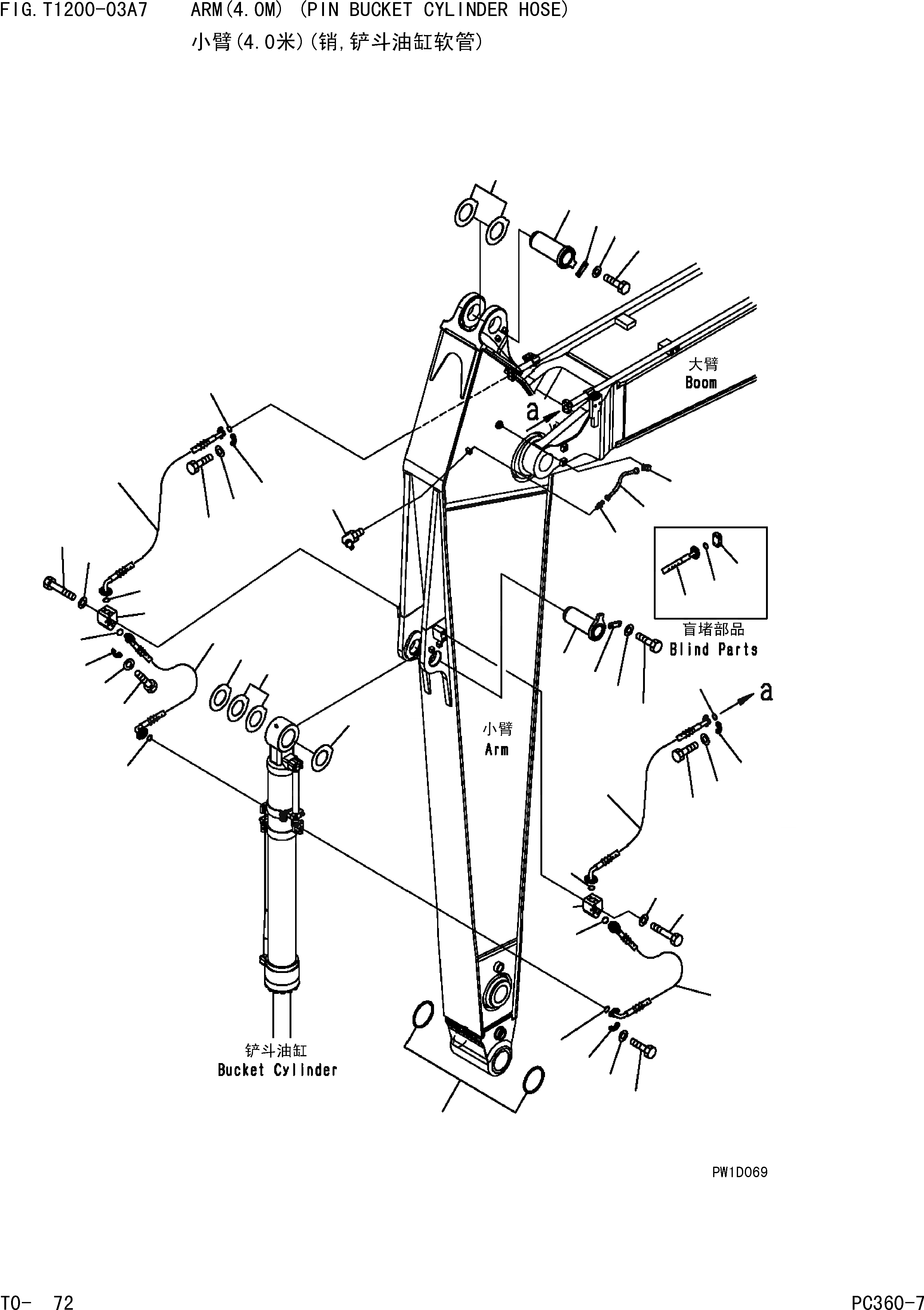
Запчасти Komatsu PC360-7 РУКОЯТЬ (.M)(ПАЛЕЦ ПАТРУБКИ ЦИЛИНДРА КОВША) РАБОЧЕЕ ОБОРУДОВАНИЕ]

Схема запчастей Komatsu PC360-7 - РУКОЯТЬ (.M)(ПАЛЕЦ ПАТРУБКИ ЦИЛИНДРА КОВША) РАБОЧЕЕ ОБОРУДОВАНИЕ]
5
1
2
4
3
12
13
14
17
16
25
21
22
20
15
16
17
26
17
8
9
7
6
16
21
22
20
10
11
10
18
23
17
24
19
20
22
21
19
17
23
19
25
24
18
21
22
20
19
27
FIT
1:1
100%

Артикул

Название

Примечание

Количество

1

208-70-61240

PIN

2

205-70-66580

PLATE

3

01010-81235

BOLT

4

01643-31232

WASHER

5

207-70-31340

SPACER,1MM

|$5

207-70-72370

SPACER,1MM

6

207-70-61220

PIN

7

205-70-66580

PLATE

8

01010-81235

BOLT

9

01643-31232

WASHER

10

207-70-24190

SPACER,1MM

11

207-70-24210

SPACER,2MM

12

20Y-25-11270

ELBOW

13

208-70-62161

TUBE

14

20Y-70-11540

CONNECTOR

15

07020-00675

FITTING

16

207-62-74180

HOSE

17

07000-13032

O-RING

18

207-943-5130

HOSE,800MM

19

07000-13032

O-RING

20

07371-31049

FLANGE

21

07372-21035

BOLT

22

01643-51032

WASHER

23

207-943-5120

ELBOW

24

01010-81290

BOLT

25

01643-31232

WASHER

26

07379-01044

FLANGE

27

207-70-33181

O-RING

Выбрано товаров: 28