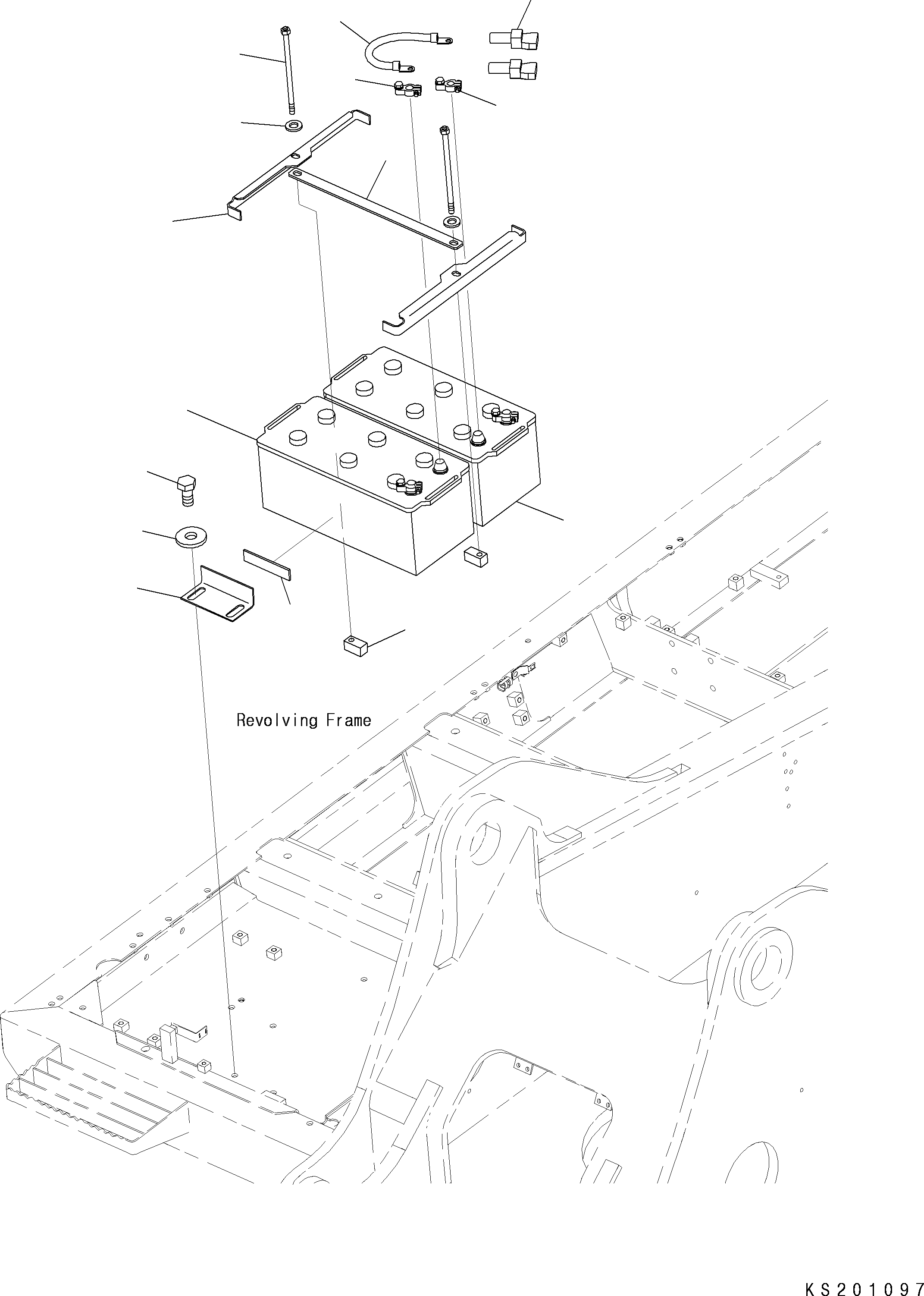
Запчасти Komatsu PC360LC-10 АККУМУЛЯТОР АККУМУЛЯТОР, ВЫСОК. ЕМК. АККУМУЛЯТОР

Схема запчастей Komatsu PC360LC-10 - АККУМУЛЯТОР АККУМУЛЯТОР, ВЫСОК. ЕМК. АККУМУЛЯТОР
9
8
6
2
3
7
5
4
1
13
1
14
11
12
10
FIT
1:1
100%

Артикул

Название

Примечание

Количество

1

424-06-H4140

Battery

2

08000-00000

Terminal

3

08000-00001

Terminal

4

205-06-K1251

Bracket

5

207-06-K1271

Plate

6

205-06-K1730

Bolt

7

01643-31232

Washer

8

08028-64030

Cable

9

08038-42511

Cap

10

207-06-68180

Block

11

207-06-61461

Bracket

12

207-06-51330

Sheet

13

01010-81225

Bolt

14

175-54-34170

Washer

Выбрано товаров: 14